takeofficeなら掲載物件の仲介手数料は無料です

川越ビル

住所 東京都墨田区緑3-9-2
交通 JR総武本線錦糸町」 徒歩12分
都営新宿線森下」 徒歩6分
竣工 1990年02月 構造 -
規模 地上5階 耐震基準 -
床構造 - 空調設備 -
天井高 - 基準階面積 --
コンセント容量 - 施工会社

最新の募集状況や類似物件については、
こちらにお問い合わせください。

川越ビル 外観

外観

  • 川越ビル エントランス写真

    エントランス

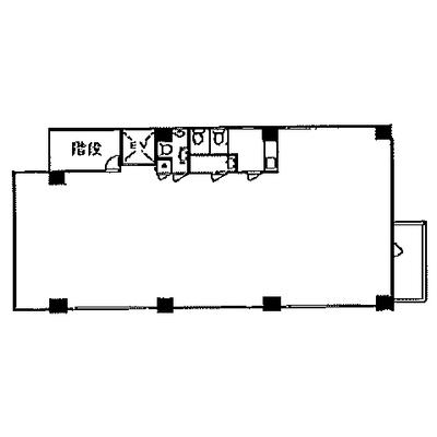
  • 4F

    4F

内見やお見積りなどの各種お問い合わせ

全物件
仲介手数料無料
仲介から
入居工事まで
ワンストップで対応
経験豊富なスタッフが
スピード感をもって
対応

周辺での似た条件の物件

非公開物件 多数あり!

お問い合わせフォーム