takeofficeなら掲載物件の仲介手数料は無料です

WBフラット(旧:亀沢4丁目貸事務所)

住所 東京都墨田区亀沢4-18-9
交通 JR総武本線錦糸町」 徒歩9分
東京メトロ半蔵門線錦糸町」 徒歩9分
竣工 2008年10月 構造 鉄骨造
規模 地上3階 耐震基準 新耐震基準
床構造 フリーアクセス 空調設備 個別空調
天井高 2700mm 基準階面積 --
コンセント容量 - 施工会社

最新の募集状況や類似物件については、
こちらにお問い合わせください。

WBフラット(旧:亀沢4丁目貸事務所) 外観

外観

  • WBフラット(旧:亀沢4丁目貸事務所) エントランス写真

    エントランス

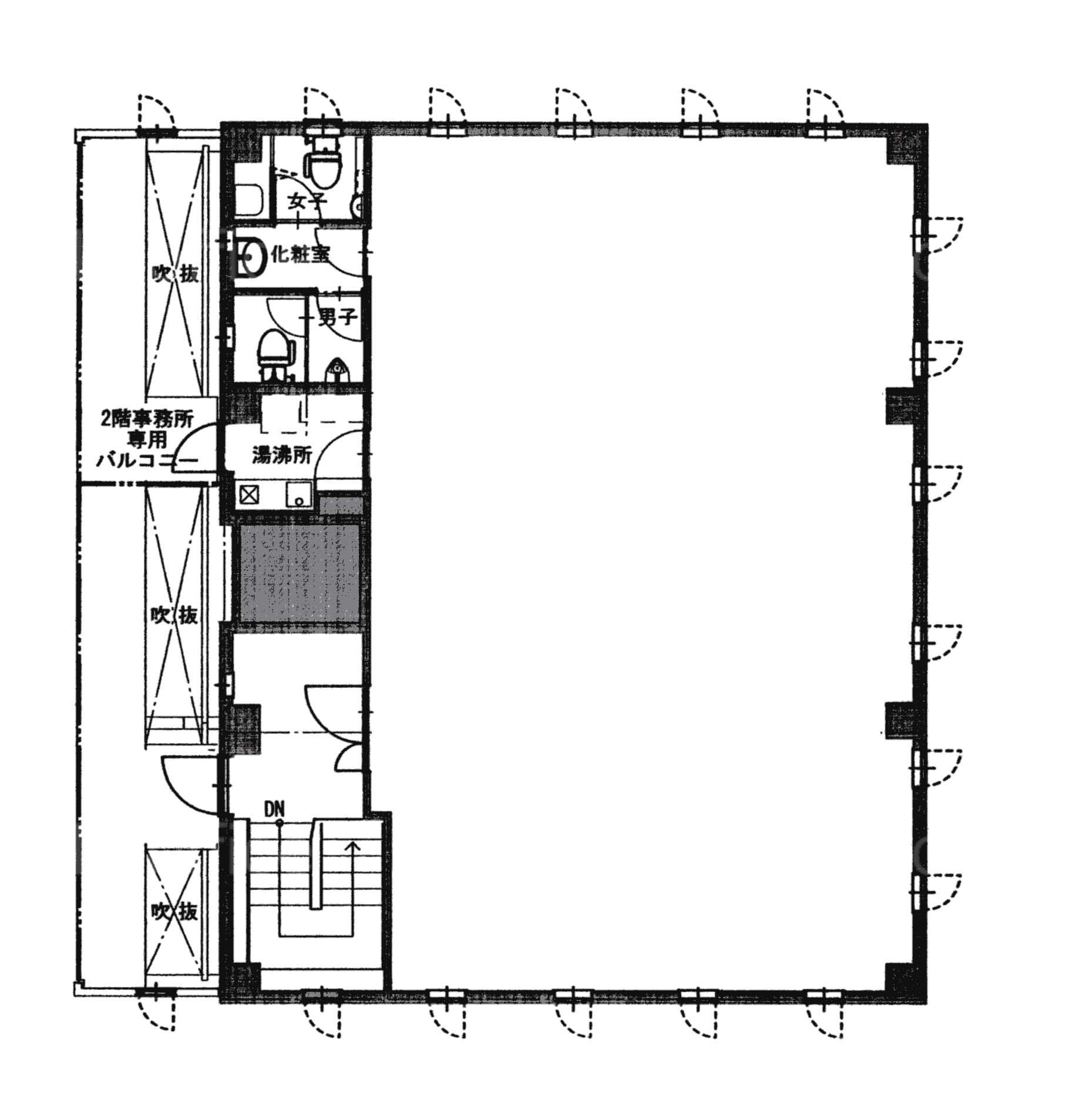
  • 2F

    2F

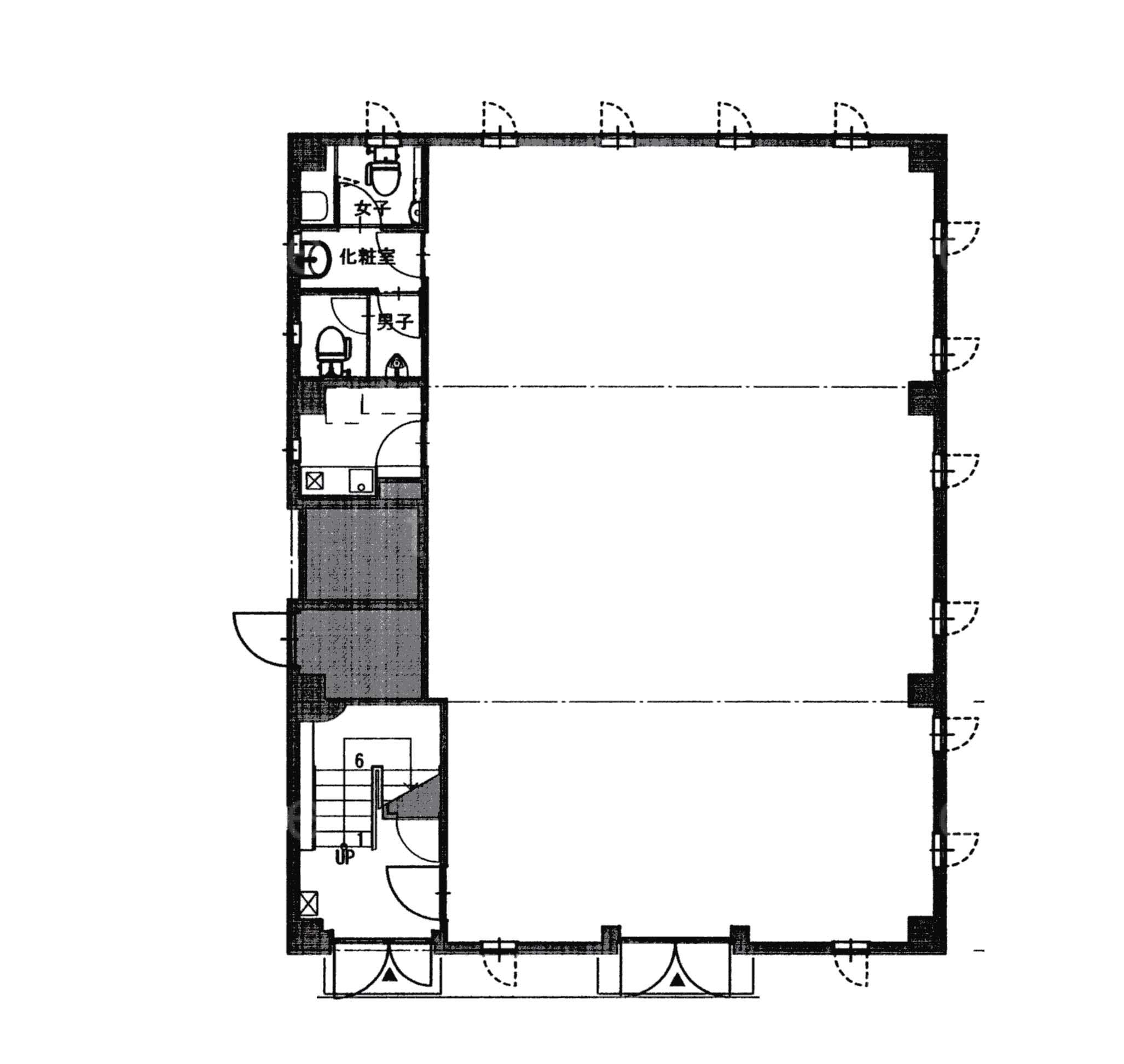
  • 1F

    1F

内見やお見積りなどの各種お問い合わせ

全物件
仲介手数料無料
仲介から
入居工事まで
ワンストップで対応
経験豊富なスタッフが
スピード感をもって
対応

周辺での似た条件の物件

非公開物件 多数あり!

お問い合わせフォーム