takeofficeなら掲載物件の仲介手数料は無料です

本所吾妻橋DJビル

住所 東京都墨田区本所4-19-3
交通 都営浅草線本所吾妻橋」 徒歩6分
伊勢崎線業平橋」 徒歩13分
竣工 1991年07月 構造 鉄骨造
規模 地上8階 耐震基準 新耐震基準
床構造 フリーアクセス 空調設備 個別空調
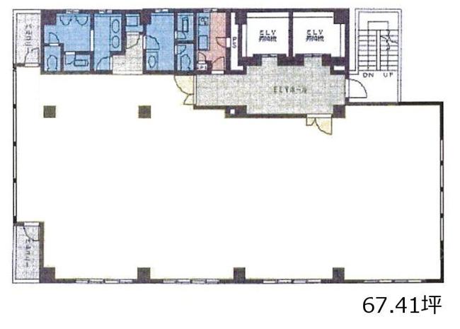
天井高 - 基準階面積 67.41坪(222.84m2)
コンセント容量 - 施工会社

最新の募集状況や類似物件については、
こちらにお問い合わせください。

本所吾妻橋DJビル 外観

外観

  • 本所吾妻橋DJビル エントランス写真

    エントランス

内見やお見積りなどの各種お問い合わせ

全物件
仲介手数料無料
仲介から
入居工事まで
ワンストップで対応
経験豊富なスタッフが
スピード感をもって
対応

周辺での似た条件の物件

非公開物件 多数あり!

お問い合わせフォーム