takeofficeなら掲載物件の仲介手数料は無料です

三和ビル

住所 東京都墨田区江東橋2-2-3
交通 JR総武本線錦糸町」 徒歩5分
東京メトロ半蔵門線錦糸町」 徒歩5分
竣工 1989年04月 構造 RC
規模 地上9階 耐震基準 新耐震基準
床構造 - 空調設備 個別空調
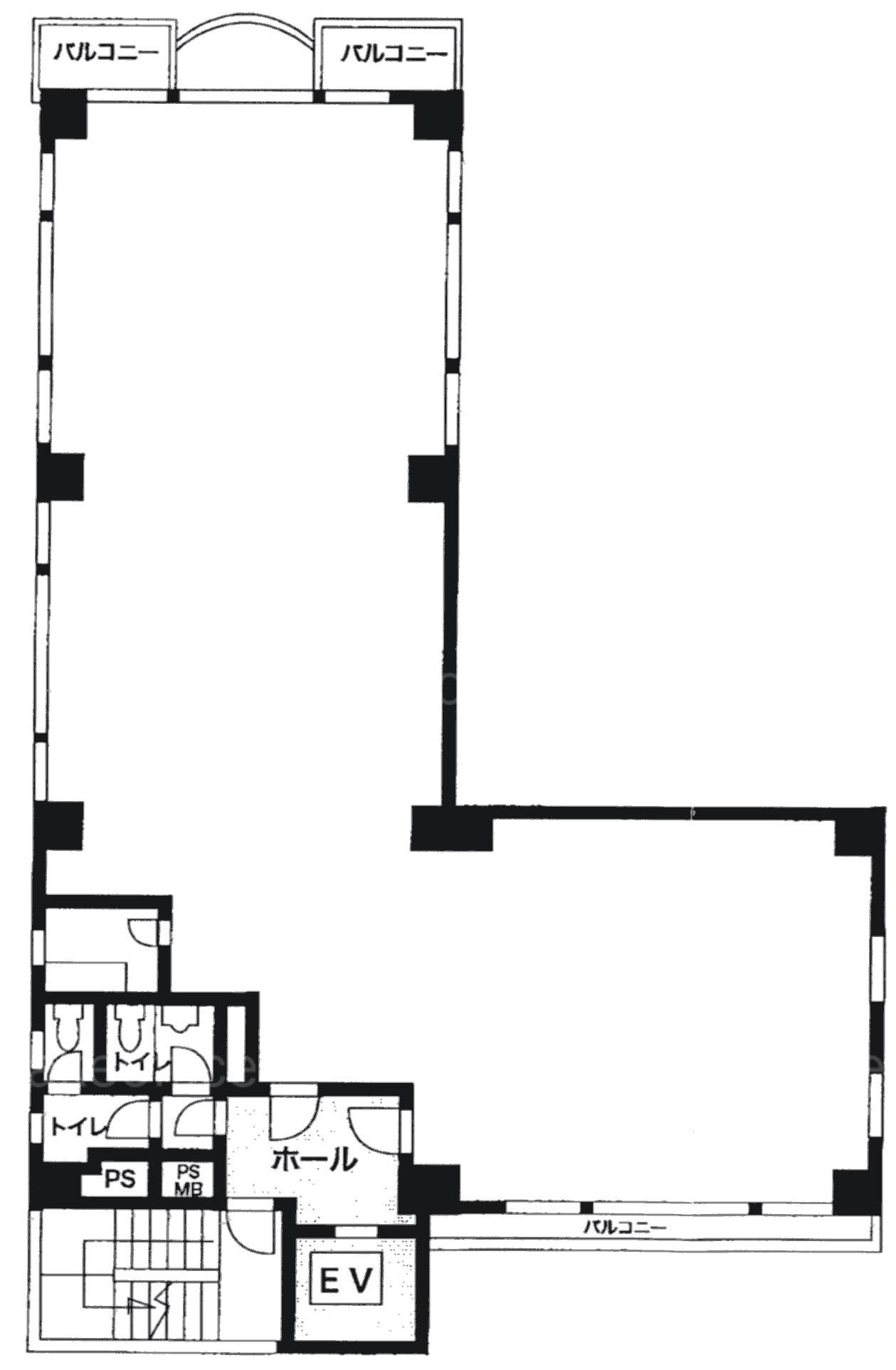
天井高 2350mm 基準階面積 41.52坪(137.26m2)
コンセント容量 - 施工会社

最新の募集状況や類似物件については、
こちらにお問い合わせください。

三和ビル 外観

外観

  • 三和ビル エントランス写真

    エントランス

  • 6F

    6F

内見やお見積りなどの各種お問い合わせ

全物件
仲介手数料無料
仲介から
入居工事まで
ワンストップで対応
経験豊富なスタッフが
スピード感をもって
対応

周辺での似た条件の物件

非公開物件 多数あり!

お問い合わせフォーム