takeofficeなら掲載物件の仲介手数料は無料です

日本生命錦糸町ビル

住所 東京都墨田区江東橋3-7-8
交通 JR総武本線錦糸町」 徒歩3分
東京メトロ半蔵門線錦糸町」 徒歩3分
竣工 1982年 月 構造 SRC
規模 地上8階, 地下1階 耐震基準 新耐震基準
床構造 フリーアクセス 40mm 空調設備 個別空調
天井高 2460mm 基準階面積 109坪(363m2)
コンセント容量 - 施工会社

最新の募集状況や類似物件については、
こちらにお問い合わせください。

日本生命錦糸町ビル 外観

外観

  • 日本生命錦糸町ビル エントランス写真

    エントランス

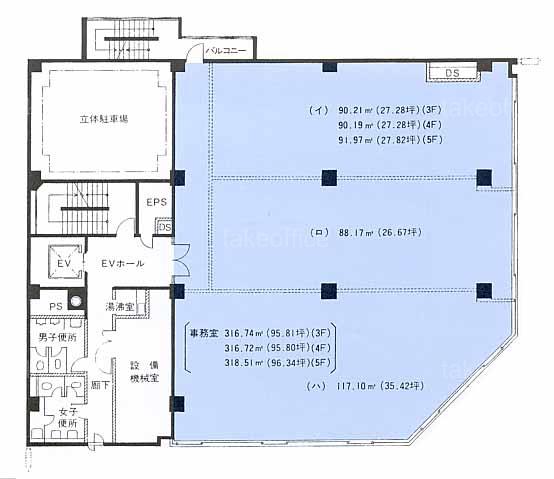
  • 基準階(3~5F)

    基準階(3~5F)

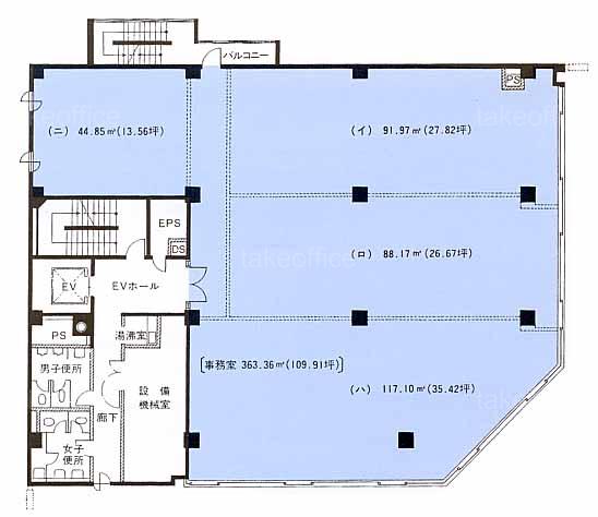
  • 1F

    1F

  • 6~8F

    6~8F

内見やお見積りなどの各種お問い合わせ

全物件
仲介手数料無料
仲介から
入居工事まで
ワンストップで対応
経験豊富なスタッフが
スピード感をもって
対応

周辺での似た条件の物件

非公開物件 多数あり!

お問い合わせフォーム