takeofficeなら掲載物件の仲介手数料は無料です

あいおいニッセイ同和損保錦糸町ビル

住所 東京都墨田区江東橋4-29-12
交通 東京メトロ半蔵門線錦糸町」 徒歩2分
JR総武本線錦糸町」 徒歩3分
竣工 1995年12月 構造 -
規模 地上10階, 地下0階 耐震基準 新耐震基準
床構造 - 空調設備 個別空調
天井高 - 基準階面積 53.85坪(178.02m2)
コンセント容量 - 施工会社

最新の募集状況や類似物件については、
こちらにお問い合わせください。

あいおいニッセイ同和損保錦糸町ビル 外観

外観

  • あいおいニッセイ同和損保錦糸町ビル エントランス写真

    エントランス

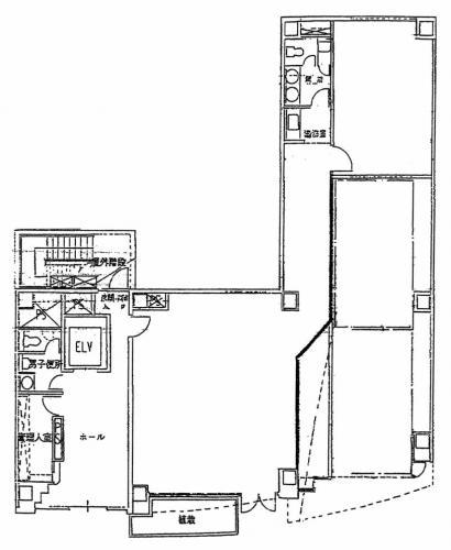
  • 基準階(2~10F)

    基準階(2~10F)

  • 1F

    1F

内見やお見積りなどの各種お問い合わせ

全物件
仲介手数料無料
仲介から
入居工事まで
ワンストップで対応
経験豊富なスタッフが
スピード感をもって
対応

周辺での似た条件の物件

非公開物件 多数あり!

お問い合わせフォーム