takeofficeなら掲載物件の仲介手数料は無料です

朝日ビル

住所 東京都墨田区太平1-2-11
交通 JR総武本線錦糸町」 徒歩8分
東京メトロ半蔵門線錦糸町」 徒歩10分
竣工 1998年01月 構造 鉄骨造
規模 地上3階, 地下0階 耐震基準 新耐震基準
床構造 フリーアクセス 空調設備 個別空調
天井高 2650mm 基準階面積 --
コンセント容量 - 施工会社

最新の募集状況や類似物件については、
こちらにお問い合わせください。

朝日ビル 外観

外観

  • 朝日ビル エントランス写真

    エントランス

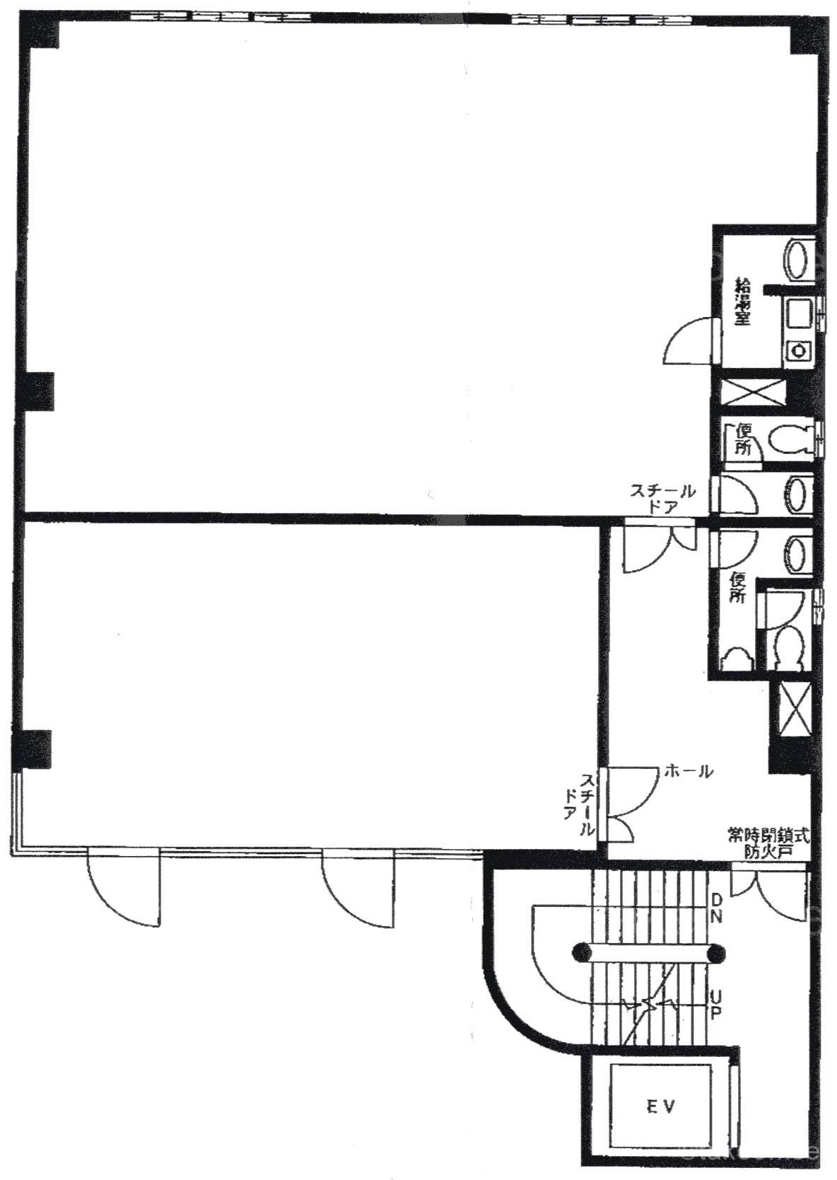
  • 3F

    3F

内見やお見積りなどの各種お問い合わせ

全物件
仲介手数料無料
仲介から
入居工事まで
ワンストップで対応
経験豊富なスタッフが
スピード感をもって
対応

周辺での似た条件の物件

非公開物件 多数あり!

お問い合わせフォーム