takeofficeなら掲載物件の仲介手数料は無料です

飯野ビル

住所 東京都江東区亀戸1-8-7
交通 JR総武本線亀戸」 徒歩5分
竣工 1993年03月 構造 鉄骨造
規模 地上9階, 地下1階 耐震基準 新耐震基準
床構造 3WAY 空調設備 個別空調
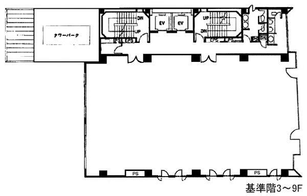
天井高 2600mm 基準階面積 87.19坪(288.23m2)
コンセント容量 - 施工会社

最新の募集状況や類似物件については、
こちらにお問い合わせください。

飯野ビル 外観

外観

  • 飯野ビル エントランス写真

    エントランス

  • 基準階(2~9F)

    基準階(2~9F)

  • 1F

    1F

内見やお見積りなどの各種お問い合わせ

全物件
仲介手数料無料
仲介から
入居工事まで
ワンストップで対応
経験豊富なスタッフが
スピード感をもって
対応

周辺での似た条件の物件

非公開物件 多数あり!

お問い合わせフォーム