takeofficeなら掲載物件の仲介手数料は無料です

タニビル

住所 東京都江東区亀戸1-28-6
交通 JR総武本線亀戸」 徒歩6分
竣工 1988年11月 構造 SRC
規模 地上8階 耐震基準 新耐震基準
床構造 フリーアクセス 50mm 空調設備 個別空調
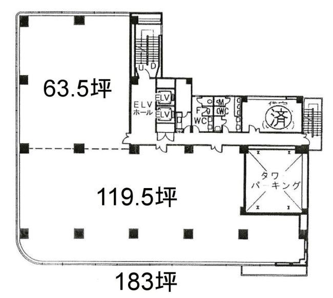
天井高 2500mm 基準階面積 183坪(604m2)
コンセント容量 - 施工会社

最新の募集状況や類似物件については、
こちらにお問い合わせください。

タニビル 外観

外観

内見やお見積りなどの各種お問い合わせ

全物件
仲介手数料無料
仲介から
入居工事まで
ワンストップで対応
経験豊富なスタッフが
スピード感をもって
対応

周辺での似た条件の物件

非公開物件 多数あり!

お問い合わせフォーム