takeofficeなら掲載物件の仲介手数料は無料です

Nビル東陽町

住所 東京都江東区新砂1-6-35
交通 東京メトロ東西線東陽町」 徒歩5分
東京メトロ東西線南砂町」 徒歩10分
竣工 1994年03月 構造 SRC
規模 地上8階 耐震基準 新耐震基準
床構造 フリーアクセス 空調設備 個別空調
天井高 2500mm 基準階面積 143坪(473m2)
コンセント容量 - 施工会社

最新の募集状況や類似物件については、
こちらにお問い合わせください。

Nビル東陽町 外観

外観

  • Nビル東陽町 エントランス写真

    エントランス

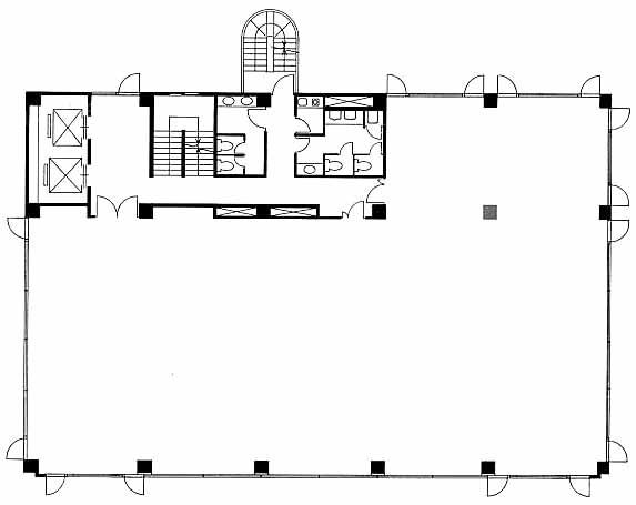
  • 基準階(2~8F)

    基準階(2~8F)

  • 1F

    1F

内見やお見積りなどの各種お問い合わせ

全物件
仲介手数料無料
仲介から
入居工事まで
ワンストップで対応
経験豊富なスタッフが
スピード感をもって
対応

周辺での似た条件の物件

非公開物件 多数あり!

お問い合わせフォーム