takeofficeなら掲載物件の仲介手数料は無料です

ACNプライムタワー東陽町

住所 東京都江東区南砂2-36-11
交通 東京メトロ東西線南砂町」 徒歩5分
東京メトロ東西線東陽町」 徒歩8分
竣工 1991年10月 構造 SRC+RC
規模 地上9階, 地下1階 耐震基準 新耐震基準
床構造 フリーアクセス 50mm 空調設備 セントラル+個別
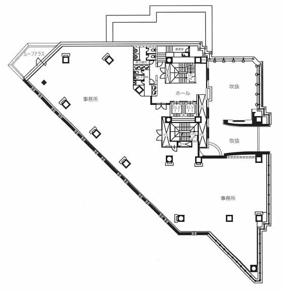
天井高 2550mm 基準階面積 72.01坪(238.05m2)
コンセント容量 - 施工会社

最新の募集状況や類似物件については、
こちらにお問い合わせください。

ACNプライムタワー東陽町 外観

外観

建物パンフレット

建物パンフレットは作成時点のものであり、また計画段階のものも含まれる為、実際とは異なる場合がございます。

内見やお見積りなどの各種お問い合わせ

全物件
仲介手数料無料
仲介から
入居工事まで
ワンストップで対応
経験豊富なスタッフが
スピード感をもって
対応

周辺での似た条件の物件

非公開物件 多数あり!

お問い合わせフォーム