takeofficeなら掲載物件の仲介手数料は無料です

江間忠錦糸町ビル

住所 東京都江東区毛利1-19-10
交通 都営新宿線住吉」 徒歩4分
JR総武本線錦糸町」 徒歩5分
東京メトロ半蔵門線錦糸町」 徒歩5分
竣工 1986年03月 構造 RC
規模 地上7階, 地下1階 耐震基準 新耐震基準
床構造 フリーアクセス 50mm 空調設備 個別空調
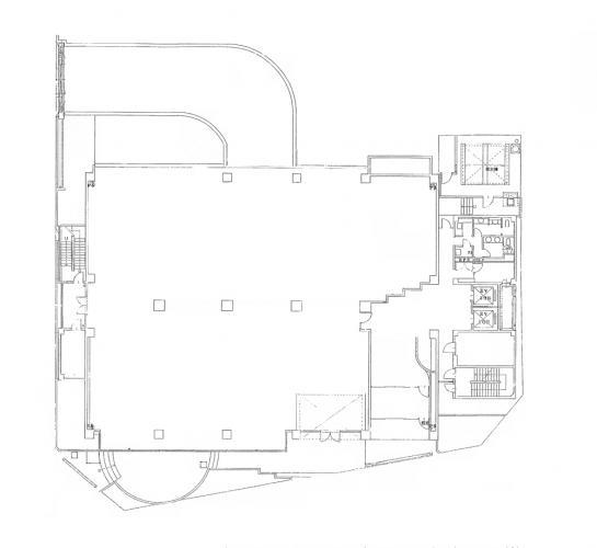
天井高 2650mm 基準階面積 231.13坪(764.07m2)
コンセント容量 - 施工会社

最新の募集状況や類似物件については、
こちらにお問い合わせください。

江間忠錦糸町ビル 外観

外観

建物パンフレット

建物パンフレットは作成時点のものであり、また計画段階のものも含まれる為、実際とは異なる場合がございます。

内見やお見積りなどの各種お問い合わせ

全物件
仲介手数料無料
仲介から
入居工事まで
ワンストップで対応
経験豊富なスタッフが
スピード感をもって
対応

周辺での似た条件の物件

非公開物件 多数あり!

お問い合わせフォーム