takeofficeなら掲載物件の仲介手数料は無料です

ミヤシタビル

住所 東京都江東区東陽3-7-10
交通 東京メトロ東西線木場」 徒歩3分
東京メトロ東西線東陽町」 徒歩8分
竣工 1993年03月 構造 -
規模 地上8階 耐震基準 新耐震基準
床構造 - 空調設備 個別空調
天井高 2400mm 基準階面積 34.19坪(113.02m2)
コンセント容量 - 施工会社

最新の募集状況や類似物件については、
こちらにお問い合わせください。

NOW PRINTING

外観

  • NOW PRINTING

    エントランス

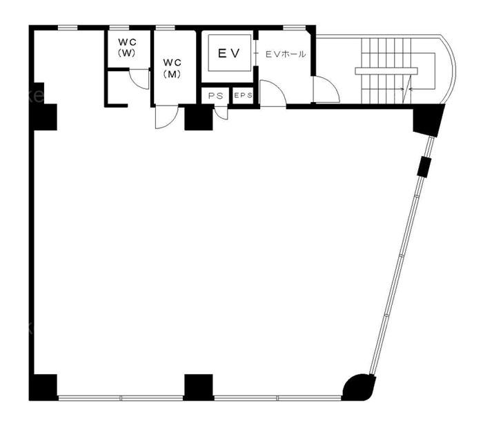
  • 基準階(2~3F)

    基準階(2~3F)

  • 1F

    1F

内見やお見積りなどの各種お問い合わせ

全物件
仲介手数料無料
仲介から
入居工事まで
ワンストップで対応
経験豊富なスタッフが
スピード感をもって
対応
非公開物件 多数あり!

お問い合わせフォーム