takeofficeなら掲載物件の仲介手数料は無料です

深川セントラルビル

住所 東京都江東区木場2-19-15
交通 東京メトロ東西線木場」 徒歩1分
竣工 1988年08月 構造 鉄骨造
規模 地上8階 耐震基準 新耐震基準
床構造 フリーアクセス 50mm 空調設備 個別空調
天井高 2540mm 基準階面積 56.22坪(185.85m2)
コンセント容量 - 施工会社

最新の募集状況や類似物件については、
こちらにお問い合わせください。

深川セントラルビル 外観

外観

  • NOW PRINTING

    エントランス

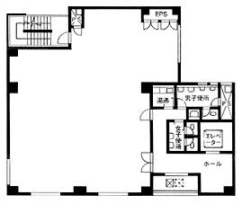
  • 基準階(4~6F)

    基準階(4~6F)

内見やお見積りなどの各種お問い合わせ

全物件
仲介手数料無料
仲介から
入居工事まで
ワンストップで対応
経験豊富なスタッフが
スピード感をもって
対応

周辺での似た条件の物件

非公開物件 多数あり!

お問い合わせフォーム