takeofficeなら掲載物件の仲介手数料は無料です

永代橋ケニスビル(旧:茅場町アクセス)

住所 東京都江東区佐賀1-2-8
交通 都営大江戸線門前仲町」 徒歩8分
東京メトロ東西線茅場町」 徒歩11分
竣工 1990年03月 構造 SRC
規模 地上8階 耐震基準 新耐震基準
床構造 フリーアクセス 空調設備 個別空調
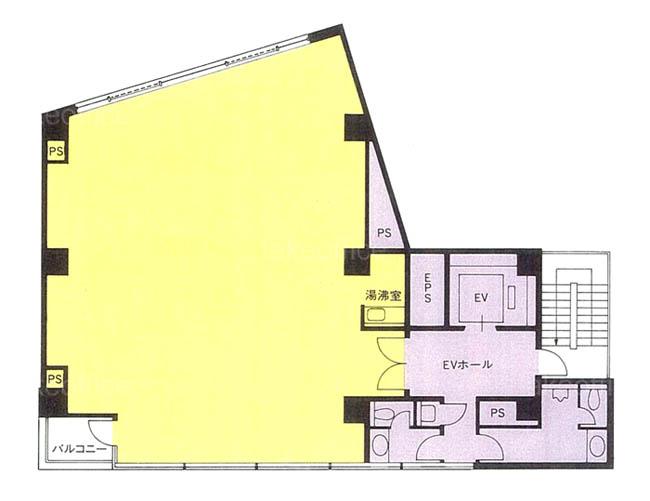
天井高 2600mm 基準階面積 41.68坪(137.79m2)
コンセント容量 - 施工会社

最新の募集状況や類似物件については、
こちらにお問い合わせください。

永代橋ケニスビル(旧:茅場町アクセス) 外観

外観

  • NOW PRINTING

    エントランス

  • 基準階(2~8F)

    基準階(2~8F)

内見やお見積りなどの各種お問い合わせ

全物件
仲介手数料無料
仲介から
入居工事まで
ワンストップで対応
経験豊富なスタッフが
スピード感をもって
対応
非公開物件 多数あり!

お問い合わせフォーム