takeofficeなら掲載物件の仲介手数料は無料です

ふくせい1ビル

住所 東京都江東区富岡2-2-11
交通 東京メトロ東西線門前仲町」 徒歩5分
東京メトロ東西線木場」 徒歩6分
JR京葉線越中島」 徒歩14分
竣工 1997年02月 構造 RC
規模 地上6階 耐震基準 新耐震基準
床構造 フリーアクセス 空調設備 個別空調
天井高 2550mm 基準階面積 104.6坪(345.79m2)
コンセント容量 - 施工会社

最新の募集状況や類似物件については、
こちらにお問い合わせください。

ふくせい1ビル 外観

外観

  • NOW PRINTING

    エントランス

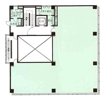
  • 基準階(3~6F)

    基準階(3~6F)

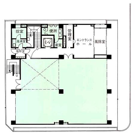
  • 1F

    1F

  • 2F

    2F

建物パンフレット

建物パンフレットは作成時点のものであり、また計画段階のものも含まれる為、実際とは異なる場合がございます。

内見やお見積りなどの各種お問い合わせ

全物件
仲介手数料無料
仲介から
入居工事まで
ワンストップで対応
経験豊富なスタッフが
スピード感をもって
対応

周辺での似た条件の物件

非公開物件 多数あり!

お問い合わせフォーム