takeofficeなら掲載物件の仲介手数料は無料です

オフィスプラネット仲町ビル

住所 東京都江東区門前仲町1-14-3
交通 東京メトロ東西線門前仲町」 徒歩2分
JR京葉線越中島」 徒歩10分
竣工 1989年03月 構造 SRC
規模 地上7階 耐震基準 新耐震基準
床構造 - 空調設備 個別空調
天井高 - 基準階面積 131.04坪(433.19m2)
コンセント容量 - 施工会社

最新の募集状況や類似物件については、
こちらにお問い合わせください。

NOW PRINTING

外観

  • NOW PRINTING

    エントランス

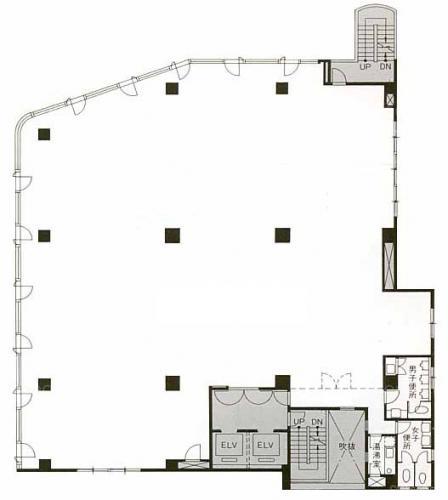
  • 基準階(2~3F)

    基準階(2~3F)

  • 1F

    1F

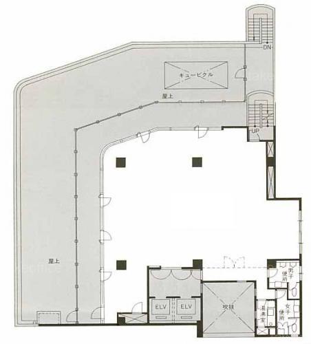
  • 4F

    4F

  • 5~6F

    5~6F

内見やお見積りなどの各種お問い合わせ

全物件
仲介手数料無料
仲介から
入居工事まで
ワンストップで対応
経験豊富なスタッフが
スピード感をもって
対応

周辺での似た条件の物件

非公開物件 多数あり!

お問い合わせフォーム