takeofficeなら掲載物件の仲介手数料は無料です

富吉ビル

住所 東京都江東区永代1-13-6
交通 東京メトロ東西線門前仲町」 徒歩6分
JR京葉線越中島」 徒歩12分
竣工 1993年04月 構造 SRC+RC
規模 地上10階 耐震基準 新耐震基準
床構造 - 空調設備 個別空調
天井高 2470mm 基準階面積 46.21坪(152.76m2)
コンセント容量 - 施工会社

最新の募集状況や類似物件については、
こちらにお問い合わせください。

富吉ビル 外観

外観

  • NOW PRINTING

    エントランス

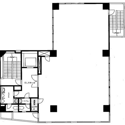
  • 基準階

    基準階

内見やお見積りなどの各種お問い合わせ

全物件
仲介手数料無料
仲介から
入居工事まで
ワンストップで対応
経験豊富なスタッフが
スピード感をもって
対応
非公開物件 多数あり!

お問い合わせフォーム