takeofficeなら掲載物件の仲介手数料は無料です

サンイースト辰巳

住所 東京都江東区辰巳3-7-26
交通 りんかい線東雲」 徒歩7分
東京メトロ有楽町線辰巳」 徒歩8分
竣工 1993年01月 構造 SRC+鉄骨造
規模 地上8階 耐震基準 新耐震基準
床構造 フリーアクセス 100mm 空調設備 個別空調
天井高 2650mm 基準階面積 435.42坪(1439.4m2)
コンセント容量 - 施工会社

最新の募集状況や類似物件については、
こちらにお問い合わせください。

サンイースト辰巳 外観

外観

  • サンイースト辰巳 エントランス写真

    エントランス

  • 基準階

    基準階

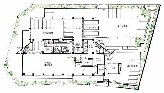
  • 1F

    1F

内見やお見積りなどの各種お問い合わせ

全物件
仲介手数料無料
仲介から
入居工事まで
ワンストップで対応
経験豊富なスタッフが
スピード感をもって
対応

周辺での似た条件の物件

非公開物件 多数あり!

お問い合わせフォーム