takeofficeなら掲載物件の仲介手数料は無料です

KR豊洲ビル

住所 東京都江東区豊洲5-4-9
交通 東京メトロ有楽町線豊洲」 徒歩4分
竣工 1991年02月 構造 SRC
規模 地上7階, 地下1階 耐震基準 新耐震基準
床構造 フリーアクセス 100mm 空調設備 ゾーン空調
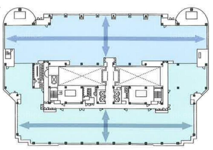
天井高 2500mm 基準階面積 379.91坪(1255.9m2)
コンセント容量 - 施工会社

最新の募集状況や類似物件については、
こちらにお問い合わせください。

KR豊洲ビル 外観

外観

建物パンフレット

建物パンフレットは作成時点のものであり、また計画段階のものも含まれる為、実際とは異なる場合がございます。

内見やお見積りなどの各種お問い合わせ

全物件
仲介手数料無料
仲介から
入居工事まで
ワンストップで対応
経験豊富なスタッフが
スピード感をもって
対応

周辺での似た条件の物件

非公開物件 多数あり!

お問い合わせフォーム