takeofficeなら掲載物件の仲介手数料は無料です

oak meguro

住所 東京都品川区上大崎2-13-30
交通 JR山手線目黒」 徒歩3分
竣工 2016年03月 構造 鉄骨造+SRC
規模 地上10階, 地下2階 耐震基準 新耐震基準
床構造 フリーアクセス 100mm 空調設備 個別空調
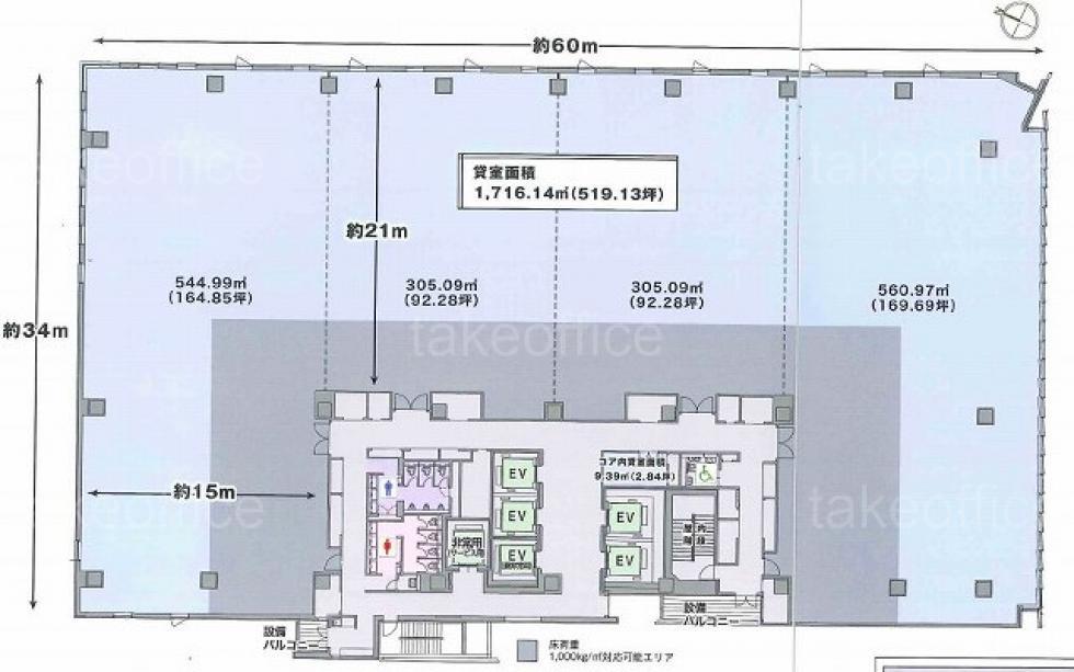
天井高 2800mm 基準階面積 521.97坪(1725.52m2)
コンセント容量 60VA/m2 施工会社

最新の募集状況や類似物件については、
こちらにお問い合わせください。

oak meguro 外観

外観

  • oak meguro エントランス写真

    エントランス

  • 基準階

    基準階

建物パンフレット

建物パンフレットは作成時点のものであり、また計画段階のものも含まれる為、実際とは異なる場合がございます。

内見やお見積りなどの各種お問い合わせ

全物件
仲介手数料無料
仲介から
入居工事まで
ワンストップで対応
経験豊富なスタッフが
スピード感をもって
対応

周辺での似た条件の物件

非公開物件 多数あり!

お問い合わせフォーム