takeofficeなら掲載物件の仲介手数料は無料です

日本生命五反田イーストビル(旧:五反田ANビル)

住所 東京都品川区東五反田1-22-1
交通 JR山手線五反田」 徒歩2分
都営浅草線五反田」 徒歩3分
池上線大崎広小路」 徒歩8分
竣工 1990年 月 構造 鉄骨造
規模 地上9階, 地下1階 耐震基準 新耐震基準
床構造 フリーアクセス 50mm 空調設備 個別空調
天井高 2500mm 基準階面積 232.32坪(768m2)
コンセント容量 - 施工会社

最新の募集状況や類似物件については、
こちらにお問い合わせください。

日本生命五反田イーストビル(旧:五反田ANビル) 外観

外観

  • 日本生命五反田イーストビル(旧:五反田ANビル) エントランス写真

    エントランス

  • 基準階(5~9F)

    基準階(5~9F)

  • 1F

    1F

  • 2~4F

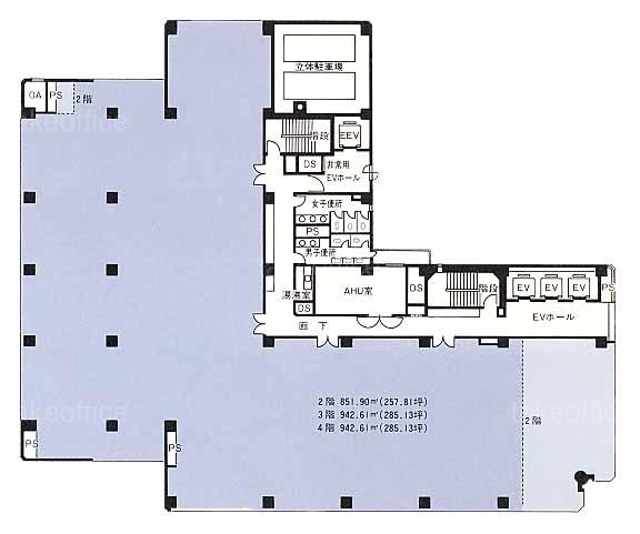
    2~4F

内見やお見積りなどの各種お問い合わせ

全物件
仲介手数料無料
仲介から
入居工事まで
ワンストップで対応
経験豊富なスタッフが
スピード感をもって
対応

周辺での似た条件の物件

非公開物件 多数あり!

お問い合わせフォーム