takeofficeなら掲載物件の仲介手数料は無料です

高輪台ビルディング

住所 東京都品川区東五反田3-1-5
交通 都営浅草線高輪台」 徒歩2分
JR山手線五反田」 徒歩9分
都営三田線白金台」 徒歩11分
竣工 1990年12月 構造 SRC
規模 地上12階, 地下1階 耐震基準 新耐震基準
床構造 フリーアクセス 100mm 空調設備 個別空調
天井高 2500mm 基準階面積 103.13坪(340.93m2)
コンセント容量 50VA/m2 施工会社

最新の募集状況や類似物件については、
こちらにお問い合わせください。

高輪台ビルディング 外観

外観

  • 高輪台ビルディング エントランス写真

    エントランス

  • 基準階(3~9F)

    基準階(3~9F)

  • 1F

    1F

  • 10F

    10F

  • 11F

    11F

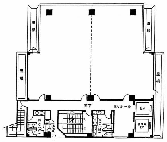
  • 12F

    12F

  • B1F

    B1F

建物パンフレット

建物パンフレットは作成時点のものであり、また計画段階のものも含まれる為、実際とは異なる場合がございます。

内見やお見積りなどの各種お問い合わせ

全物件
仲介手数料無料
仲介から
入居工事まで
ワンストップで対応
経験豊富なスタッフが
スピード感をもって
対応

周辺での似た条件の物件

非公開物件 多数あり!

お問い合わせフォーム