takeofficeなら掲載物件の仲介手数料は無料です

齋征池田山ビル

住所 東京都品川区東五反田5-10-25
交通 JR山手線五反田」 徒歩4分
都営浅草線五反田」 徒歩2分
池上線大崎広小路」 徒歩12分
竣工 1994年10月 構造 RC
規模 地上5階 耐震基準 新耐震基準
床構造 フリーアクセス 空調設備 個別空調
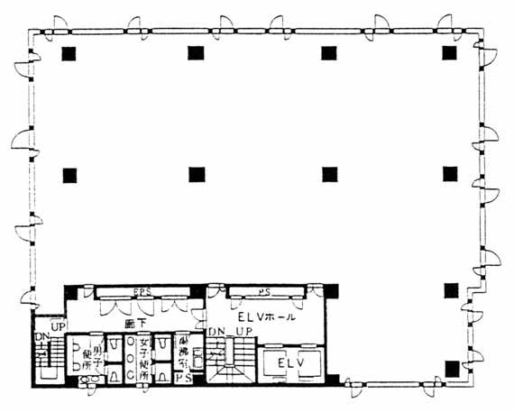
天井高 2500mm 基準階面積 153.44坪(507.24m2)
コンセント容量 30VA/m2 施工会社

最新の募集状況や類似物件については、
こちらにお問い合わせください。

齋征池田山ビル 外観

外観

  • 齋征池田山ビル エントランス写真

    エントランス

  • 基準階

    基準階

  • 1F

    1F

内見やお見積りなどの各種お問い合わせ

全物件
仲介手数料無料
仲介から
入居工事まで
ワンストップで対応
経験豊富なスタッフが
スピード感をもって
対応

周辺での似た条件の物件

非公開物件 多数あり!

お問い合わせフォーム