takeofficeなら掲載物件の仲介手数料は無料です

メタリオンOSビル

住所 東京都品川区東五反田5-21-15
交通 JR山手線五反田」 徒歩7分
都営浅草線五反田」 徒歩7分
池上線五反田」 徒歩7分
竣工 1991年08月 構造 SRC+RC
規模 地上8階 耐震基準 新耐震基準
床構造 - 空調設備 個別空調
天井高 2500mm 基準階面積 82.56坪(272.91m2)
コンセント容量 70VA/m2 施工会社

最新の募集状況や類似物件については、
こちらにお問い合わせください。

メタリオンOSビル 外観

外観

  • メタリオンOSビル エントランス写真

    エントランス

  • 2F

    2F

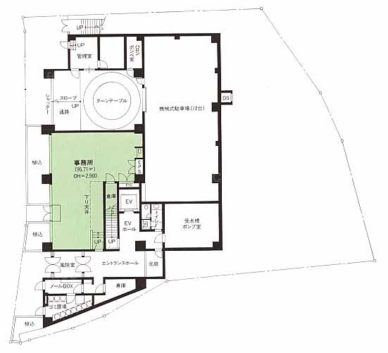
  • 1F

    1F

  • 3F

    3F

  • 4F

    4F

  • 5F

    5F

建物パンフレット

建物パンフレットは作成時点のものであり、また計画段階のものも含まれる為、実際とは異なる場合がございます。

内見やお見積りなどの各種お問い合わせ

全物件
仲介手数料無料
仲介から
入居工事まで
ワンストップで対応
経験豊富なスタッフが
スピード感をもって
対応

周辺での似た条件の物件

非公開物件 多数あり!

お問い合わせフォーム