takeofficeなら掲載物件の仲介手数料は無料です

関配ビル

住所 東京都品川区東五反田5-22-27
交通 JR山手線五反田」 徒歩4分
都営浅草線五反田」 徒歩4分
竣工 1986年01月 構造 SRC+RC
規模 地上10階, 地下2階 耐震基準 新耐震基準
床構造 フリーアクセス 50mm 空調設備 セントラル+個別
天井高 2350mm 基準階面積 101.79坪(336.5m2)
コンセント容量 - 施工会社

最新の募集状況や類似物件については、
こちらにお問い合わせください。

関配ビル 外観

外観

  • 関配ビル エントランス写真

    エントランス

  • 基準階(7~9F)

    基準階(7~9F)

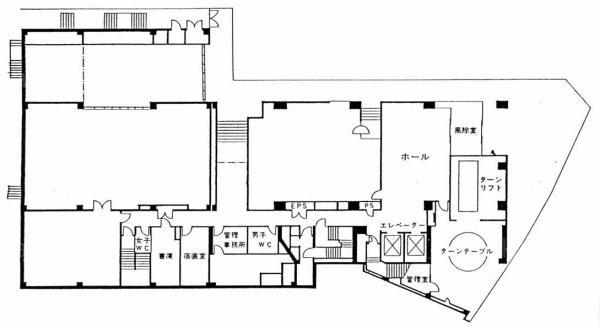
  • 1F

    1F

内見やお見積りなどの各種お問い合わせ

全物件
仲介手数料無料
仲介から
入居工事まで
ワンストップで対応
経験豊富なスタッフが
スピード感をもって
対応

周辺での似た条件の物件

非公開物件 多数あり!

お問い合わせフォーム