takeofficeなら掲載物件の仲介手数料は無料です

MLJ五反田ビル

住所 東京都品川区東五反田5-25-16
交通 JR山手線五反田」 徒歩3分
都営浅草線五反田」 徒歩3分
池上線五反田」 徒歩3分
竣工 1980年05月 構造 SRC+RC
規模 地上9階, 地下2階 耐震基準 新耐震基準
床構造 - 空調設備 個別空調
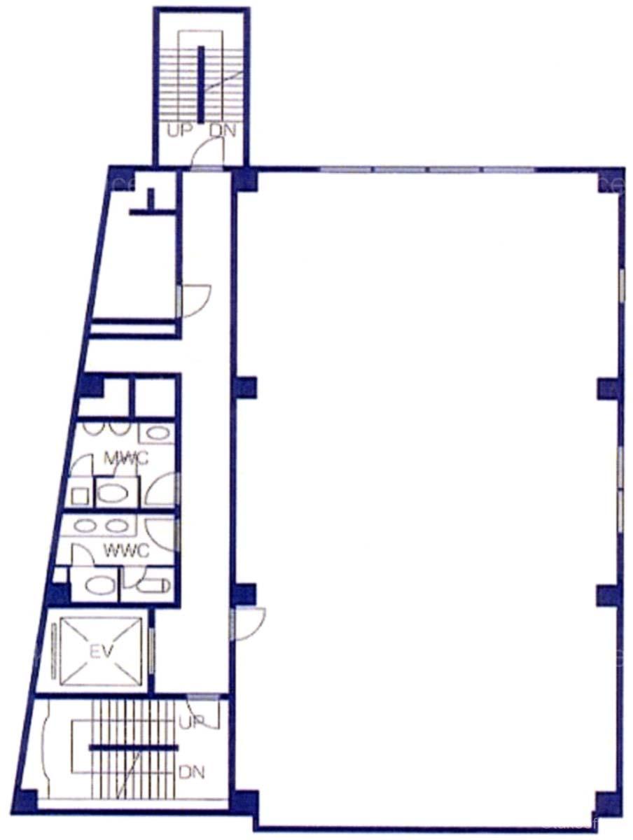
天井高 2400mm 基準階面積 64.64坪(213.69m2)
コンセント容量 - 施工会社

最新の募集状況や類似物件については、
こちらにお問い合わせください。

MLJ五反田ビル 外観

外観

内見やお見積りなどの各種お問い合わせ

全物件
仲介手数料無料
仲介から
入居工事まで
ワンストップで対応
経験豊富なスタッフが
スピード感をもって
対応

周辺での似た条件の物件

非公開物件 多数あり!

お問い合わせフォーム