takeofficeなら掲載物件の仲介手数料は無料です

ヒューリック五反田山手通ビル

住所 東京都品川区西五反田1-21-8
交通 池上線大崎広小路」 徒歩2分
JR山手線五反田」 徒歩5分
JR埼京線大崎」 徒歩8分
竣工 1996年03月 構造 SRC
規模 地上8階, 地下1階 耐震基準 新耐震基準
床構造 フリーアクセス 45mm 空調設備 個別空調
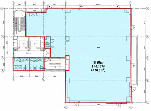
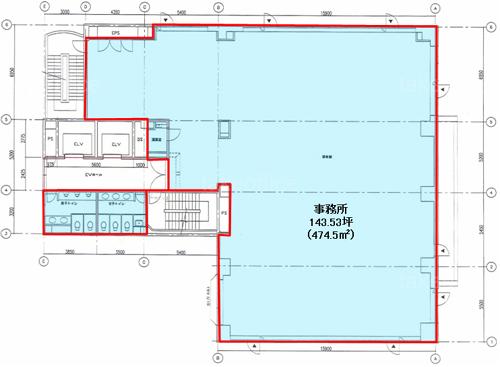
天井高 2650mm 基準階面積 143.86坪(475.57m2)
コンセント容量 - 施工会社

最新の募集状況や類似物件については、
こちらにお問い合わせください。

ヒューリック五反田山手通ビル 外観

外観

内見やお見積りなどの各種お問い合わせ

全物件
仲介手数料無料
仲介から
入居工事まで
ワンストップで対応
経験豊富なスタッフが
スピード感をもって
対応

周辺での似た条件の物件

非公開物件 多数あり!

お問い合わせフォーム