takeofficeなら掲載物件の仲介手数料は無料です

日本生命五反田ビル

住所 東京都品川区西五反田1-31-1
交通 JR山手線五反田」 徒歩4分
都営浅草線五反田」 徒歩4分
池上線大崎広小路」 徒歩4分
竣工 1974年 月 構造 SRC
規模 地上10階, 地下2階 耐震基準 新耐震基準
床構造 フリーアクセス 50mm 空調設備 フロア別空調
天井高 2550mm 基準階面積 376坪(1243m2)
コンセント容量 - 施工会社

最新の募集状況や類似物件については、
こちらにお問い合わせください。

日本生命五反田ビル 外観

外観

  • 日本生命五反田ビル エントランス写真

    エントランス

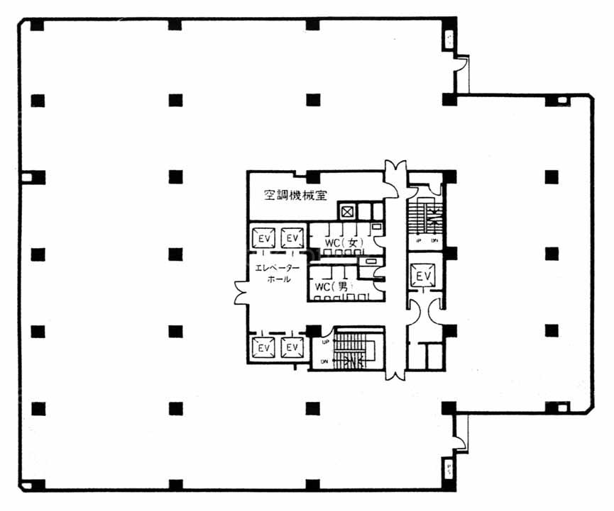
  • 基準階

    基準階

内見やお見積りなどの各種お問い合わせ

全物件
仲介手数料無料
仲介から
入居工事まで
ワンストップで対応
経験豊富なスタッフが
スピード感をもって
対応

周辺での似た条件の物件

非公開物件 多数あり!

お問い合わせフォーム