takeofficeなら掲載物件の仲介手数料は無料です

明治安田生命五反田ビル

住所 東京都品川区西五反田2-27-4
交通 JR山手線五反田」 徒歩4分
都営浅草線五反田」 徒歩4分
池上線五反田」 徒歩4分
竣工 1985年07月 構造 SRC
規模 地上9階, 地下1階 耐震基準 新耐震基準
床構造 フリーアクセス 50mm 空調設備 セントラル空調
天井高 2400mm 基準階面積 209.9坪(693.88m2)
コンセント容量 - 施工会社

最新の募集状況や類似物件については、
こちらにお問い合わせください。

明治安田生命五反田ビル 外観

外観

  • 明治安田生命五反田ビル エントランス写真

    エントランス

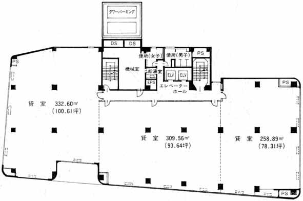
  • 基準階(4~9F)

    基準階(4~9F)

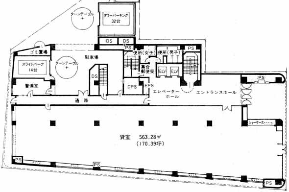
  • 1F

    1F

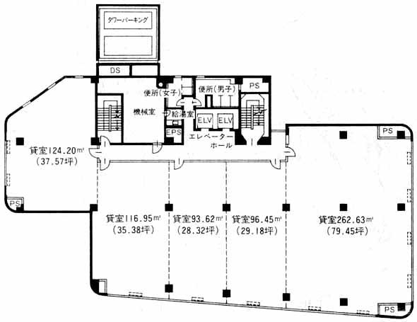
  • 2F

    2F

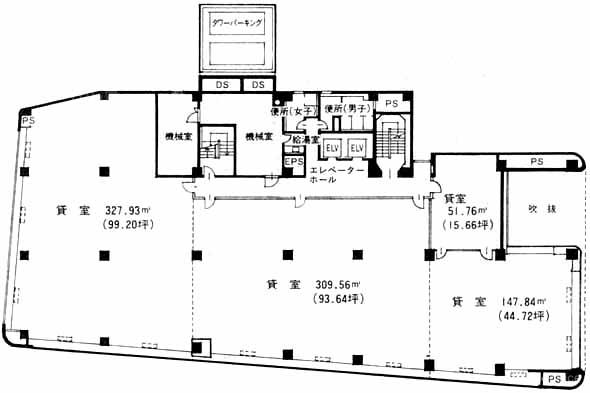
  • 3F

    3F

内見やお見積りなどの各種お問い合わせ

全物件
仲介手数料無料
仲介から
入居工事まで
ワンストップで対応
経験豊富なスタッフが
スピード感をもって
対応

周辺での似た条件の物件

非公開物件 多数あり!

お問い合わせフォーム