takeofficeなら掲載物件の仲介手数料は無料です

第3TOCビル

住所 東京都品川区西五反田7-23-1
交通 JR山手線五反田」 徒歩8分
都営浅草線五反田」 徒歩8分
竣工 1971年01月 構造 SRC
規模 地上11階 耐震基準 旧耐震基準
床構造 - 空調設備 セントラル空調
天井高 2318mm 基準階面積 176.74坪(584.26m2)
コンセント容量 20VA/m2 施工会社

最新の募集状況や類似物件については、
こちらにお問い合わせください。

第3TOCビル 外観

外観

  • NOW PRINTING

    エントランス

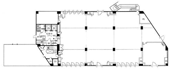
  • 基準階

    基準階

内見やお見積りなどの各種お問い合わせ

全物件
仲介手数料無料
仲介から
入居工事まで
ワンストップで対応
経験豊富なスタッフが
スピード感をもって
対応

※「ご相談」と記載されている項目について
賃貸人が募集賃料条件を守秘義務の関係から明示していない場合に、【ご相談】と記載しております。
フリーレント(賃料免除)期間、使用面積、入居時期、テナント様の与信などによりご提示できる条件が若干変化いたします。
お手数ですが、詳細につきましては、上記よりお問い合わせください。

周辺での似た条件の物件

非公開物件 多数あり!

お問い合わせフォーム