takeofficeなら掲載物件の仲介手数料は無料です

五反田光和ビル

住所 東京都品川区西五反田8-1-5
交通 JR山手線五反田」 徒歩5分
池上線大崎広小路」 徒歩1分
竣工 1990年11月 構造 SRC
規模 地上9階, 地下1階 耐震基準 新耐震基準
床構造 フリーアクセス 50mm 空調設備 ゾーン空調
天井高 2550mm 基準階面積 170.04坪(562.12m2)
コンセント容量 70VA/m2 施工会社

最新の募集状況や類似物件については、
こちらにお問い合わせください。

五反田光和ビル 外観

外観

  • NOW PRINTING

    エントランス

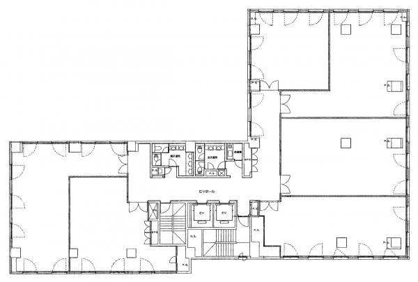
  • 基準階(2~8F)

    基準階(2~8F)

  • 1F

    1F

  • 9F

    9F

内見やお見積りなどの各種お問い合わせ

全物件
仲介手数料無料
仲介から
入居工事まで
ワンストップで対応
経験豊富なスタッフが
スピード感をもって
対応

周辺での似た条件の物件

非公開物件 多数あり!

お問い合わせフォーム