takeofficeなら掲載物件の仲介手数料は無料です

DNP五反田ビル

住所 東京都品川区西五反田3-5-20
交通 JR山手線五反田」 徒歩6分
JR山手線目黒」 徒歩9分
目黒線不動前」 徒歩8分
竣工 2006年05月 構造 鉄骨造+SRC
規模 地上25階, 地下2階 耐震基準 新耐震基準
床構造 フリーアクセス 250mm 空調設備 セントラル+個別
天井高 2700mm 基準階面積 705.84坪(2333.36m2)
コンセント容量 60VA/m2 施工会社 戸田建設

最新の募集状況や類似物件については、
こちらにお問い合わせください。

DNP五反田ビル 外観

外観

  • DNP五反田ビル エントランス写真

    エントランス

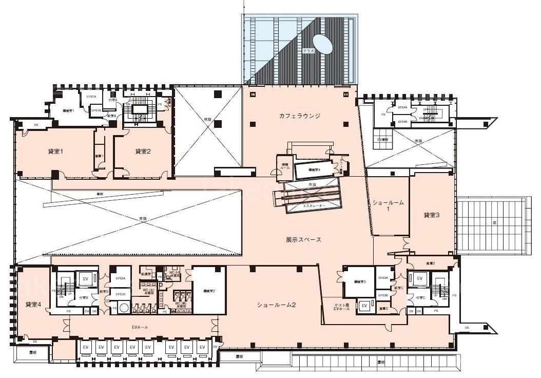
  • 基準階(3~7F)

    基準階(3~7F)

  • 1F

    1F

  • 2F

    2F

  • 8F

    8F

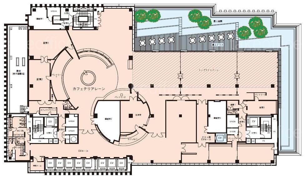
  • 9F

    9F

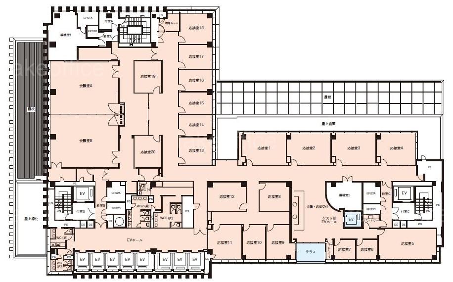
  • 10~24F

    10~24F

内見やお見積りなどの各種お問い合わせ

全物件
仲介手数料無料
仲介から
入居工事まで
ワンストップで対応
経験豊富なスタッフが
スピード感をもって
対応

周辺での似た条件の物件

非公開物件 多数あり!

お問い合わせフォーム