takeofficeなら掲載物件の仲介手数料は無料です

都五反田ビル西館

住所 東京都品川区大崎5-6-2
交通 JR山手線五反田」 徒歩4分
JR山手線大崎」 徒歩5分
池上線大崎広小路」 徒歩1分
竣工 1989年10月 構造 SRC+RC
規模 地上8階, 地下1階 耐震基準 新耐震基準
床構造 フリーアクセス 30mm 空調設備 個別空調
天井高 2450mm 基準階面積 141.24坪(466.91m2)
コンセント容量 40VA/m2 施工会社
坪面積 用途 賃料 坪単価 共益費 入居可能日
1 77.15坪 事務所 ¥1,234,400(税込 ¥1,357,840) ¥16,000(税込 ¥17,600) ¥231,450(税込 ¥254,595) 2026年3月初旬
都五反田ビル西館 外観

外観

  • NOW PRINTING

    エントランス

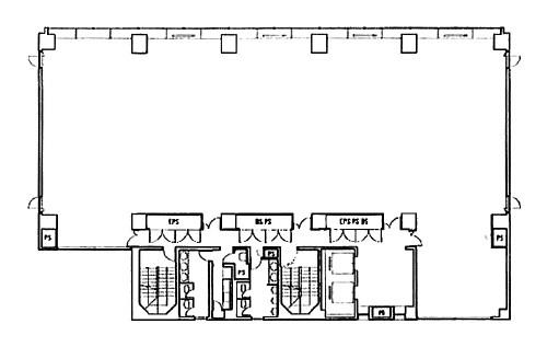
  • 基準階(4~8F)

    基準階(4~8F)

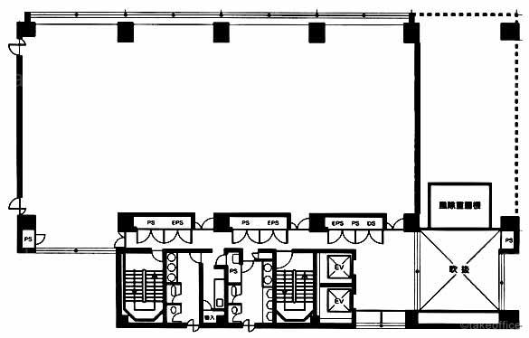
  • 1F

    1F

  • 2F

    2F

  • 3F

    3F

内見やお見積りなどの各種お問い合わせ

全物件
仲介手数料無料
仲介から
入居工事まで
ワンストップで対応
経験豊富なスタッフが
スピード感をもって
対応

※「ご相談」と記載されている項目について
賃貸人が募集賃料条件を守秘義務の関係から明示していない場合に、【ご相談】と記載しております。
フリーレント(賃料免除)期間、使用面積、入居時期、テナント様の与信などによりご提示できる条件が若干変化いたします。
お手数ですが、詳細につきましては、上記よりお問い合わせください。

周辺での似た条件の物件

非公開物件 多数あり!

お問い合わせフォーム