takeofficeなら掲載物件の仲介手数料は無料です

大崎ウエストシティビル

住所 東京都品川区大崎2-9-3
交通 JR山手線大崎」 徒歩1分
りんかい線大崎」 徒歩1分
竣工 2009年09月 構造 SRC+鉄骨造
規模 地上7階, 地下1階 耐震基準 新耐震基準
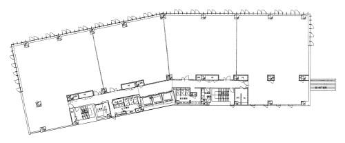
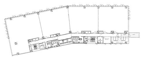
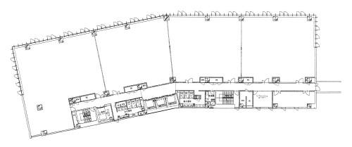
床構造 フリーアクセス 100mm 空調設備 個別空調
天井高 2700mm 基準階面積 261.2坪(863.47m2)
コンセント容量 110VA/m2 施工会社

最新の募集状況や類似物件については、
こちらにお問い合わせください。

大崎ウエストシティビル 外観

外観

内見やお見積りなどの各種お問い合わせ

全物件
仲介手数料無料
仲介から
入居工事まで
ワンストップで対応
経験豊富なスタッフが
スピード感をもって
対応

周辺での似た条件の物件

非公開物件 多数あり!

お問い合わせフォーム