takeofficeなら掲載物件の仲介手数料は無料です

(仮称)天王洲ビル(旧:タチバナビル)

住所 東京都品川区東品川2-2-28
交通 りんかい線天王洲アイル」 徒歩4分
京浜急行新馬場」 徒歩13分
竣工 1984年05月 構造 SRC
規模 地上8階 耐震基準 新耐震基準
床構造 - 空調設備 個別空調
天井高 3400mm 基準階面積 168.12坪(555.77m2)
コンセント容量 - 施工会社

最新の募集状況や類似物件については、
こちらにお問い合わせください。

(仮称)天王洲ビル(旧:タチバナビル) 外観

外観

  • NOW PRINTING

    エントランス

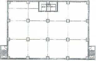
  • 基準階

    基準階

内見やお見積りなどの各種お問い合わせ

全物件
仲介手数料無料
仲介から
入居工事まで
ワンストップで対応
経験豊富なスタッフが
スピード感をもって
対応

周辺での似た条件の物件

非公開物件 多数あり!

お問い合わせフォーム