takeofficeなら掲載物件の仲介手数料は無料です

プリメール品川ビル

住所 東京都品川区東大井3-17-4
交通 京浜急行立会川」 徒歩5分
JR京浜東北線大井町」 徒歩10分
竣工 1994年08月 構造 RC
規模 地上4階 耐震基準 新耐震基準
床構造 フリーアクセス 50mm 空調設備 個別空調
天井高 2500mm 基準階面積 192.36坪(635.9m2)
コンセント容量 - 施工会社

最新の募集状況や類似物件については、
こちらにお問い合わせください。

プリメール品川ビル 外観

外観

  • プリメール品川ビル エントランス写真

    エントランス

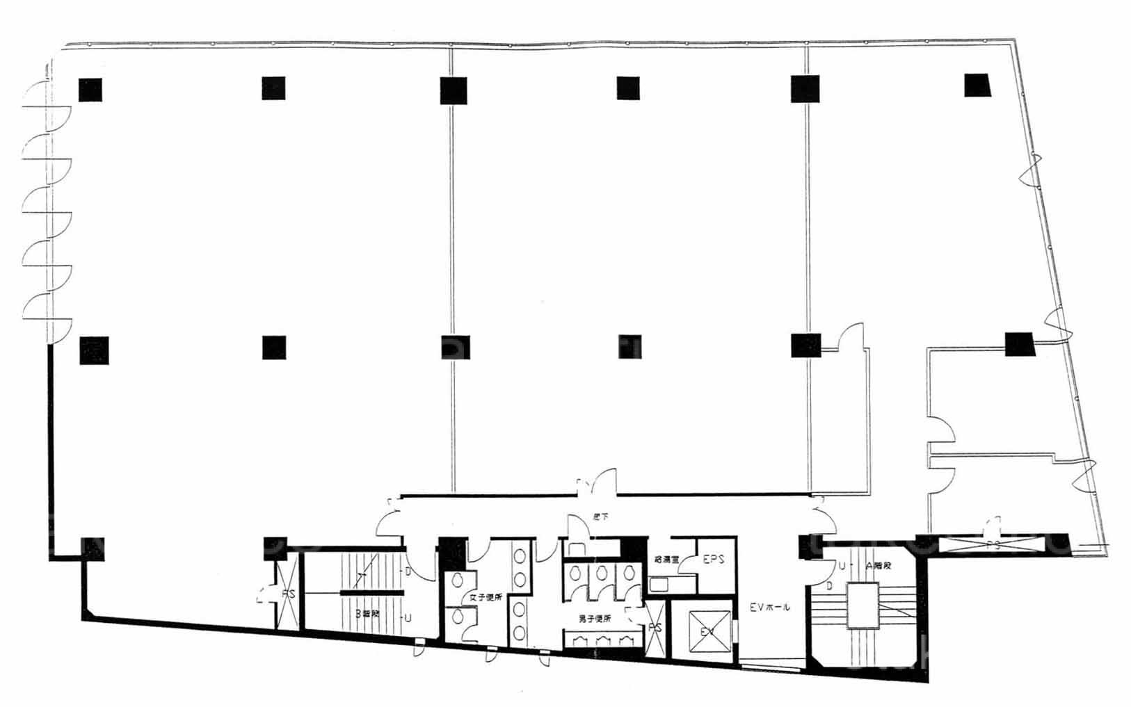
  • 基準階(2F)

    基準階(2F)

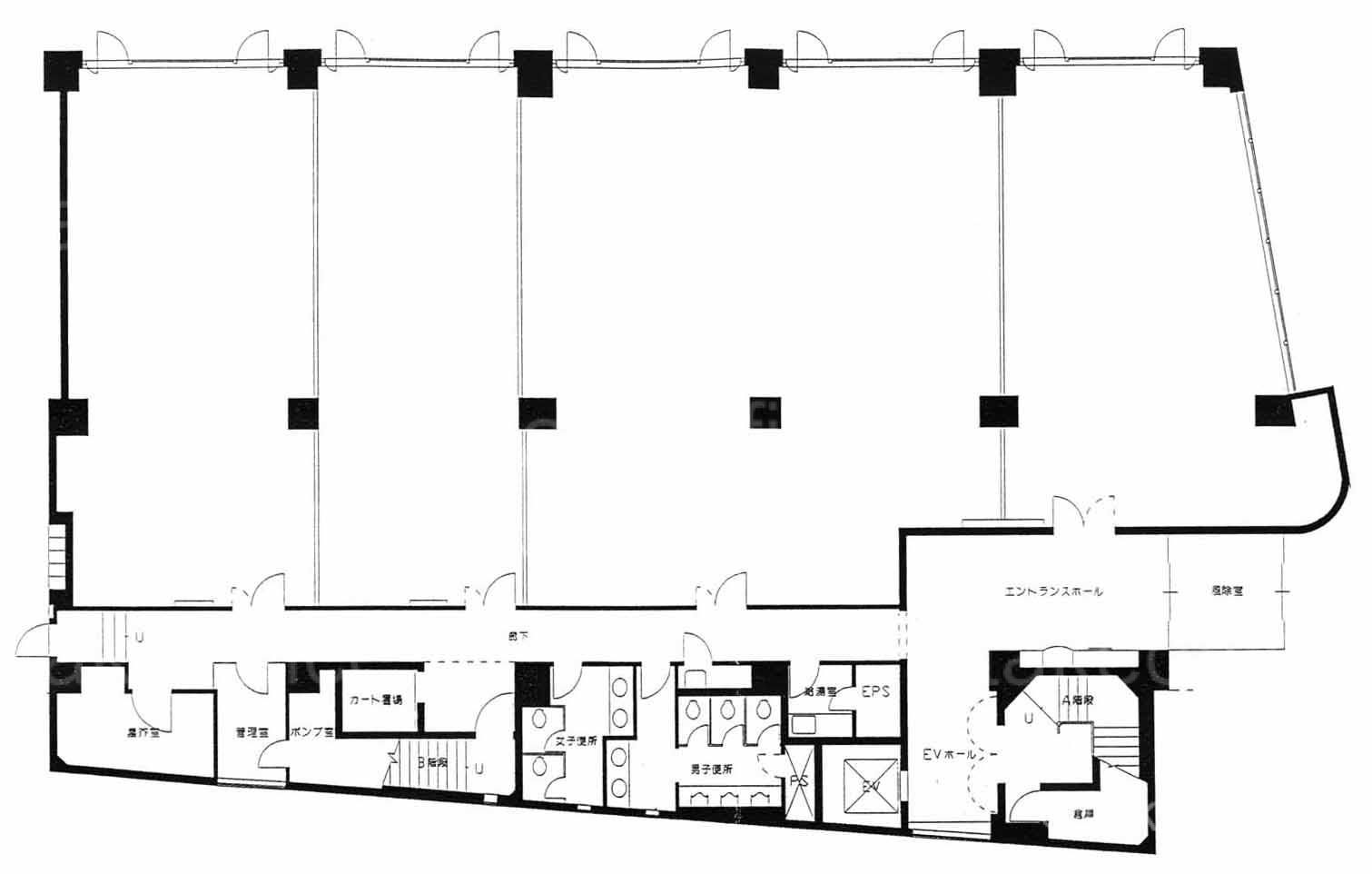
  • 1F

    1F

内見やお見積りなどの各種お問い合わせ

全物件
仲介手数料無料
仲介から
入居工事まで
ワンストップで対応
経験豊富なスタッフが
スピード感をもって
対応

周辺での似た条件の物件

非公開物件 多数あり!

お問い合わせフォーム