takeofficeなら掲載物件の仲介手数料は無料です

榮隆ビル

住所 東京都品川区東大井5-11-4
交通 JR京浜東北線大井町」 徒歩4分
京浜急行鮫洲」 徒歩6分
京浜急行青物横丁」 徒歩7分
竣工 1987年 構造 鉄骨造
規模 地上5階, 地下0階 耐震基準 新耐震基準
床構造 - 空調設備 個別空調
天井高 - 基準階面積 27坪(92m2)
コンセント容量 - 施工会社

最新の募集状況や類似物件については、
こちらにお問い合わせください。

NOW PRINTING

外観

  • NOW PRINTING

    エントランス

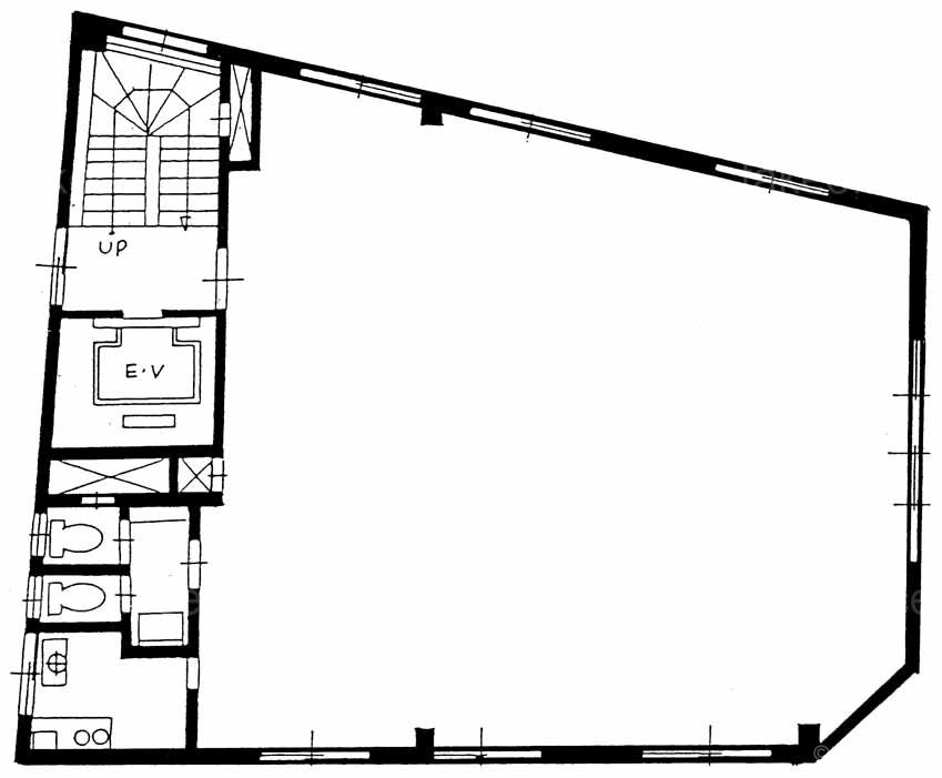
  • 基準階(2~3F)

    基準階(2~3F)

内見やお見積りなどの各種お問い合わせ

全物件
仲介手数料無料
仲介から
入居工事まで
ワンストップで対応
経験豊富なスタッフが
スピード感をもって
対応

周辺での似た条件の物件

非公開物件 多数あり!

お問い合わせフォーム