takeofficeなら掲載物件の仲介手数料は無料です

大成温調ビル

住所 東京都品川区大井1-49-10
交通 JR京浜東北線大井町」 徒歩3分
大井町線大井町」 徒歩3分
りんかい線大井町」 徒歩3分
竣工 1983年06月 構造 SRC
規模 地上7階 耐震基準 新耐震基準
床構造 フリーアクセス 空調設備 セントラル空調
天井高 - 基準階面積 133坪(441m2)
コンセント容量 - 施工会社

最新の募集状況や類似物件については、
こちらにお問い合わせください。

NOW PRINTING

外観

  • NOW PRINTING

    エントランス

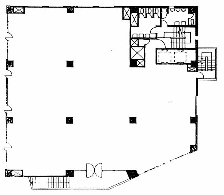
  • 基準階(3~6F)

    基準階(3~6F)

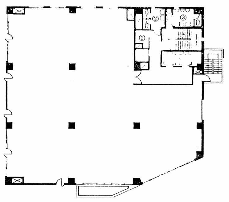
  • 1F

    1F

  • 2F

    2F

  • 7F

    7F

内見やお見積りなどの各種お問い合わせ

全物件
仲介手数料無料
仲介から
入居工事まで
ワンストップで対応
経験豊富なスタッフが
スピード感をもって
対応

周辺での似た条件の物件

非公開物件 多数あり!

お問い合わせフォーム