takeofficeなら掲載物件の仲介手数料は無料です

ウィラ大森ビル(旧:KDX大森ビル(東伸24大森ビル))

住所 東京都大田区大森北1-6-8
交通 JR京浜東北線大森」 徒歩1分
竣工 1990年10月 構造 SRC
規模 地上9階, 地下1階 耐震基準 新耐震基準
床構造 フリーアクセス 50mm 空調設備 個別空調
天井高 2650mm 基準階面積 245.53坪(811.67m2)
コンセント容量 - 施工会社

最新の募集状況や類似物件については、
こちらにお問い合わせください。

ウィラ大森ビル(旧:KDX大森ビル(東伸24大森ビル)) 外観

外観

  • ウィラ大森ビル(旧:KDX大森ビル(東伸24大森ビル)) エントランス写真

    エントランス

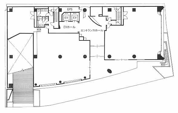
  • 基準階(2~6F)

    基準階(2~6F)

  • 1F

    1F

  • 7F

    7F

  • 8F

    8F

  • 9F

    9F

内見やお見積りなどの各種お問い合わせ

全物件
仲介手数料無料
仲介から
入居工事まで
ワンストップで対応
経験豊富なスタッフが
スピード感をもって
対応

周辺での似た条件の物件

非公開物件 多数あり!

お問い合わせフォーム