takeofficeなら掲載物件の仲介手数料は無料です

第6下川ビル

住所 東京都大田区大森北1-12-9
交通 JR京浜東北線大森」 徒歩3分
京浜急行大森海岸」 徒歩8分
竣工 1974年05月 構造 SRC
規模 地上6階, 地下0階 耐震基準 旧耐震基準
床構造 - 空調設備 -
天井高 - 基準階面積 --
コンセント容量 - 施工会社

最新の募集状況や類似物件については、
こちらにお問い合わせください。

第6下川ビル 外観

外観

  • 第6下川ビル エントランス写真

    エントランス

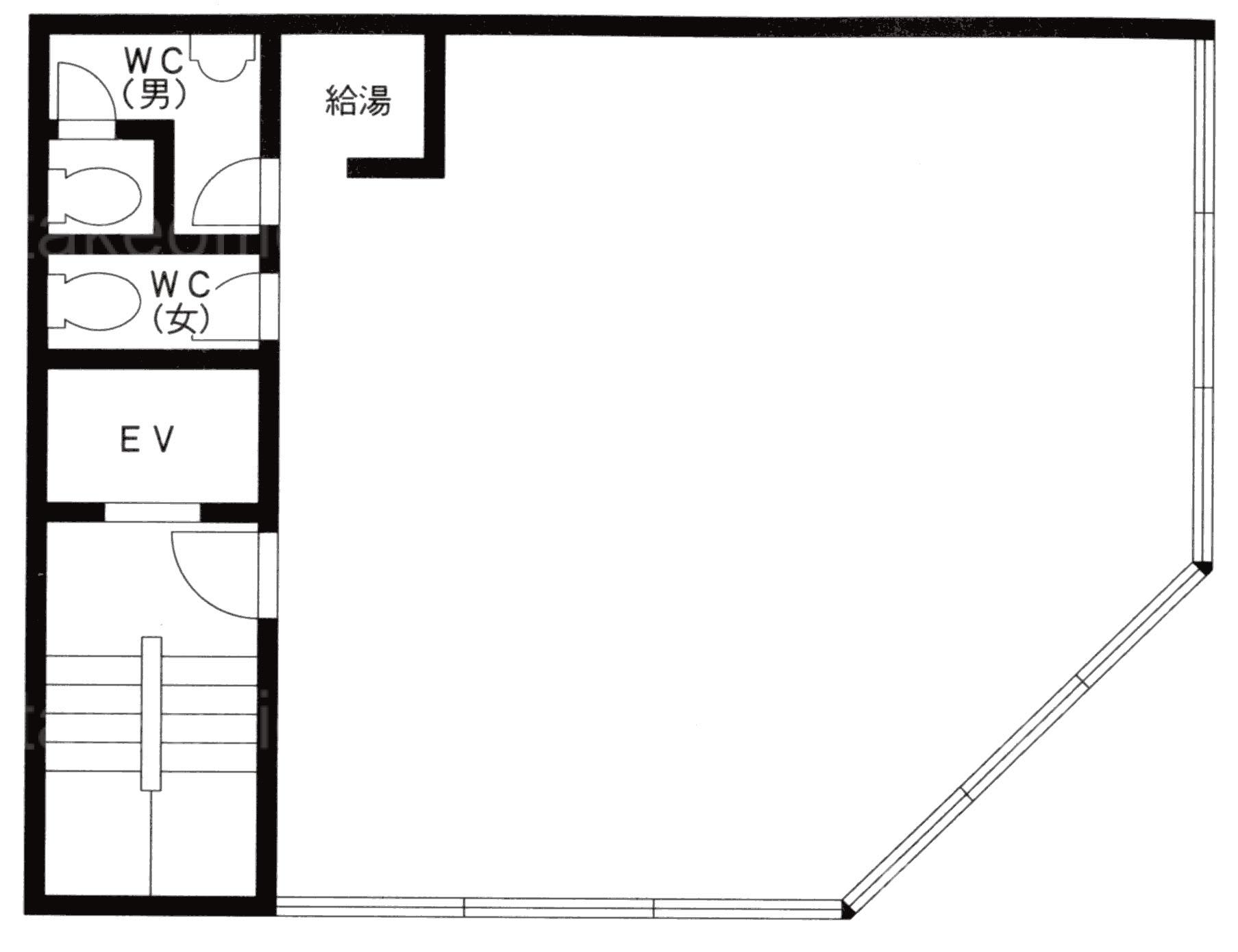
  • 基準階2~7F

    基準階2~7F

内見やお見積りなどの各種お問い合わせ

全物件
仲介手数料無料
仲介から
入居工事まで
ワンストップで対応
経験豊富なスタッフが
スピード感をもって
対応

周辺での似た条件の物件

非公開物件 多数あり!

お問い合わせフォーム