takeofficeなら掲載物件の仲介手数料は無料です

大森エリメントコープ

住所 東京都大田区大森北1-29-11
交通 JR京浜東北線大森」 徒歩5分
京浜急行大森海岸」 徒歩10分
竣工 1973年 月 構造 RC
規模 地上11階 耐震基準 旧耐震基準
床構造 - 空調設備 -
天井高 - 基準階面積 --
コンセント容量 - 施工会社

最新の募集状況や類似物件については、
こちらにお問い合わせください。

大森エリメントコープ 外観

外観

  • 大森エリメントコープ エントランス写真

    エントランス

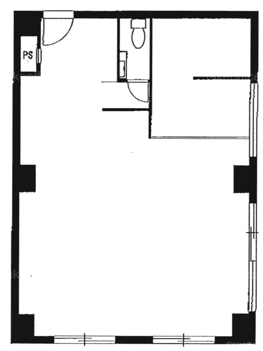
  • 3F

    3F

内見やお見積りなどの各種お問い合わせ

全物件
仲介手数料無料
仲介から
入居工事まで
ワンストップで対応
経験豊富なスタッフが
スピード感をもって
対応

周辺での似た条件の物件

非公開物件 多数あり!

お問い合わせフォーム