takeofficeなら掲載物件の仲介手数料は無料です

齊征馬込駅前ビル

住所 東京都大田区北馬込2-29-12
交通 都営浅草線馬込」 徒歩1分
竣工 1991年01月 構造 RC
規模 地上4階 耐震基準 新耐震基準
床構造 - 空調設備 個別空調
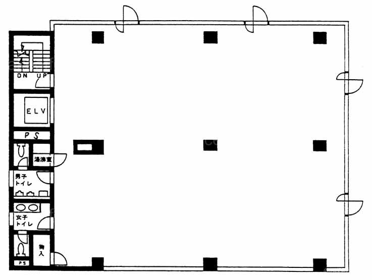
天井高 2400mm 基準階面積 73.45坪(242.81m2)
コンセント容量 - 施工会社

最新の募集状況や類似物件については、
こちらにお問い合わせください。

齊征馬込駅前ビル 外観

外観

  • NOW PRINTING

    エントランス

  • 基準階(3~4F)

    基準階(3~4F)

  • 1F

    1F

内見やお見積りなどの各種お問い合わせ

全物件
仲介手数料無料
仲介から
入居工事まで
ワンストップで対応
経験豊富なスタッフが
スピード感をもって
対応

周辺での似た条件の物件

非公開物件 多数あり!

お問い合わせフォーム