takeofficeなら掲載物件の仲介手数料は無料です

城南不二ビル(旧:大田不二ビル)

住所 東京都大田区北千束2-8-7
交通 大井町線北千束」 徒歩6分
池上線長原」 徒歩7分
目黒線洗足」 徒歩8分
竣工 1970年 月 構造 RC
規模 地上5階 耐震基準 旧耐震基準
床構造 - 空調設備 -
天井高 - 基準階面積 --
コンセント容量 - 施工会社

最新の募集状況や類似物件については、
こちらにお問い合わせください。

城南不二ビル(旧:大田不二ビル) 外観

外観

  • NOW PRINTING

    エントランス

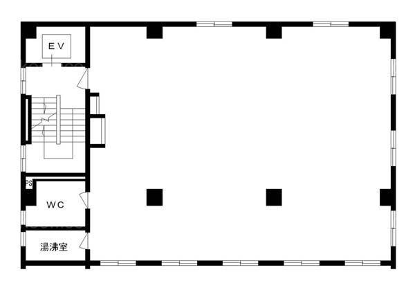
  • 基準階(4~5F)

    基準階(4~5F)

  • 1F

    1F

  • 2F

    2F

  • 3F

    3F

内見やお見積りなどの各種お問い合わせ

全物件
仲介手数料無料
仲介から
入居工事まで
ワンストップで対応
経験豊富なスタッフが
スピード感をもって
対応

周辺での似た条件の物件

非公開物件 多数あり!

お問い合わせフォーム