takeofficeなら掲載物件の仲介手数料は無料です

スカイプラザ

住所 東京都大田区羽田5-3-1
交通 東京モノレール天空橋」 徒歩8分
東京モノレール整備場」 徒歩12分
竣工 2008年02月 構造 SRC+SRC
規模 地上14階 耐震基準 新耐震基準
床構造 フリーアクセス 100mm 空調設備 セントラル+個別
天井高 2800mm 基準階面積 263.2坪(870.08m2)
コンセント容量 - 施工会社

最新の募集状況や類似物件については、
こちらにお問い合わせください。

スカイプラザ 外観

外観

  • NOW PRINTING

    エントランス

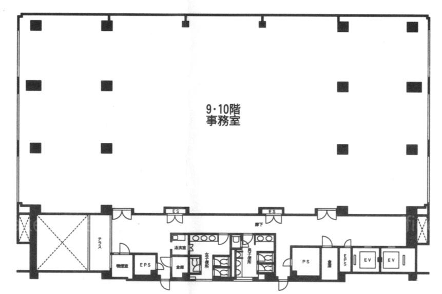
  • 基準階

    基準階

内見やお見積りなどの各種お問い合わせ

全物件
仲介手数料無料
仲介から
入居工事まで
ワンストップで対応
経験豊富なスタッフが
スピード感をもって
対応

周辺での似た条件の物件

非公開物件 多数あり!

お問い合わせフォーム