takeofficeなら掲載物件の仲介手数料は無料です

ユーティリティセンタービル

住所 東京都大田区羽田3-5-10
交通 東京モノレール新整備場」 徒歩3分
竣工 1993年04月 構造 SRC
規模 地上11階 耐震基準 新耐震基準
床構造 フリーアクセス 60mm 空調設備 個別空調
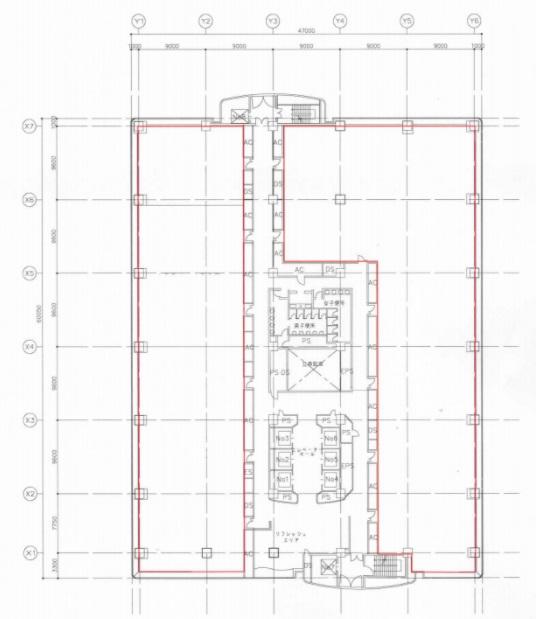
天井高 2600mm 基準階面積 600.63坪(1985.55m2)
コンセント容量 130VA/m2 施工会社

最新の募集状況や類似物件については、
こちらにお問い合わせください。

ユーティリティセンタービル 外観

外観

  • NOW PRINTING

    エントランス

  • 基準階

    基準階

内見やお見積りなどの各種お問い合わせ

全物件
仲介手数料無料
仲介から
入居工事まで
ワンストップで対応
経験豊富なスタッフが
スピード感をもって
対応

周辺での似た条件の物件

非公開物件 多数あり!

お問い合わせフォーム