takeofficeなら掲載物件の仲介手数料は無料です

京浜センタービル

住所 東京都大田区蒲田4-16-2
交通 京浜急行京急蒲田」 徒歩1分
JR京浜東北線蒲田」 徒歩9分
竣工 1991年07月 構造 RC
規模 地上5階 耐震基準 新耐震基準
床構造 - 空調設備 個別空調
天井高 - 基準階面積 34.64坪(114.51m2)
コンセント容量 - 施工会社

最新の募集状況や類似物件については、
こちらにお問い合わせください。

京浜センタービル 外観

外観

  • 京浜センタービル エントランス写真

    エントランス

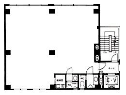
  • 基準階(3F)

    基準階(3F)

内見やお見積りなどの各種お問い合わせ

全物件
仲介手数料無料
仲介から
入居工事まで
ワンストップで対応
経験豊富なスタッフが
スピード感をもって
対応

周辺での似た条件の物件

非公開物件 多数あり!

お問い合わせフォーム