takeofficeなら掲載物件の仲介手数料は無料です

損保ジャパン蒲田ビル

住所 東京都大田区蒲田5-24-2
交通 JR京浜東北線蒲田」 徒歩3分
池上線蒲田」 徒歩4分
竣工 1998年02月 構造 SRC
規模 地上9階, 地下0階 耐震基準 新耐震基準
床構造 - 空調設備 個別空調
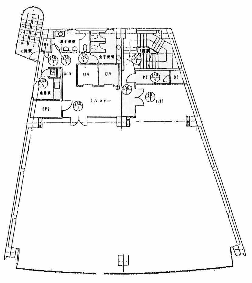
天井高 - 基準階面積 86.26坪(285.16m2)
コンセント容量 - 施工会社
坪面積 用途 賃料 坪単価 共益費 入居可能日
4 86.27坪 事務所 相談 相談 相談
3 46.87坪 事務所 相談 相談 相談
損保ジャパン蒲田ビル 外観

外観

  • 損保ジャパン蒲田ビル エントランス写真

    エントランス

  • 4~9F

    4~9F

  • 2F

    2F

内見やお見積りなどの各種お問い合わせ

全物件
仲介手数料無料
仲介から
入居工事まで
ワンストップで対応
経験豊富なスタッフが
スピード感をもって
対応

※「ご相談」と記載されている項目について
賃貸人が募集賃料条件を守秘義務の関係から明示していない場合に、【ご相談】と記載しております。
フリーレント(賃料免除)期間、使用面積、入居時期、テナント様の与信などによりご提示できる条件が若干変化いたします。
お手数ですが、詳細につきましては、上記よりお問い合わせください。

非公開物件 多数あり!

お問い合わせフォーム