takeofficeなら掲載物件の仲介手数料は無料です

第2丸信ビル

住所 東京都大田区西蒲田8-22-3
交通 JR京浜東北線蒲田」 徒歩3分
竣工 1991年08月 構造 鉄骨造
規模 地上7階 耐震基準 新耐震基準
床構造 - 空調設備 個別空調
天井高 - 基準階面積 29.33坪(96.96m2)
コンセント容量 - 施工会社

最新の募集状況や類似物件については、
こちらにお問い合わせください。

第2丸信ビル 外観

外観

  • 第2丸信ビル エントランス写真

    エントランス

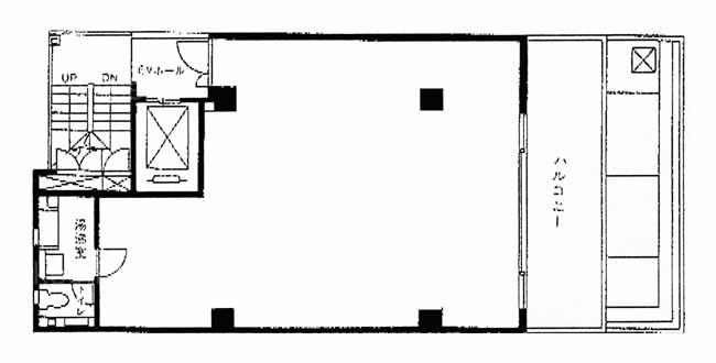
  • 基準階(2~4F)

    基準階(2~4F)

  • 1F

    1F

  • 5F

    5F

  • 6F

    6F

  • 7F

    7F

内見やお見積りなどの各種お問い合わせ

全物件
仲介手数料無料
仲介から
入居工事まで
ワンストップで対応
経験豊富なスタッフが
スピード感をもって
対応

周辺での似た条件の物件

非公開物件 多数あり!

お問い合わせフォーム