takeofficeなら掲載物件の仲介手数料は無料です

サンユー東蒲田ビル

住所 東京都大田区東蒲田2-30-17
交通 京浜急行京急蒲田」 徒歩1分
京浜急行梅屋敷」 徒歩11分
竣工 1989年03月 構造 SRC
規模 地上9階, 地下1階 耐震基準 新耐震基準
床構造 フリーアクセス 空調設備 個別空調
天井高 2490mm 基準階面積 79.47坪(262.71m2)
コンセント容量 - 施工会社

最新の募集状況や類似物件については、
こちらにお問い合わせください。

サンユー東蒲田ビル 外観

外観

  • サンユー東蒲田ビル エントランス写真

    エントランス

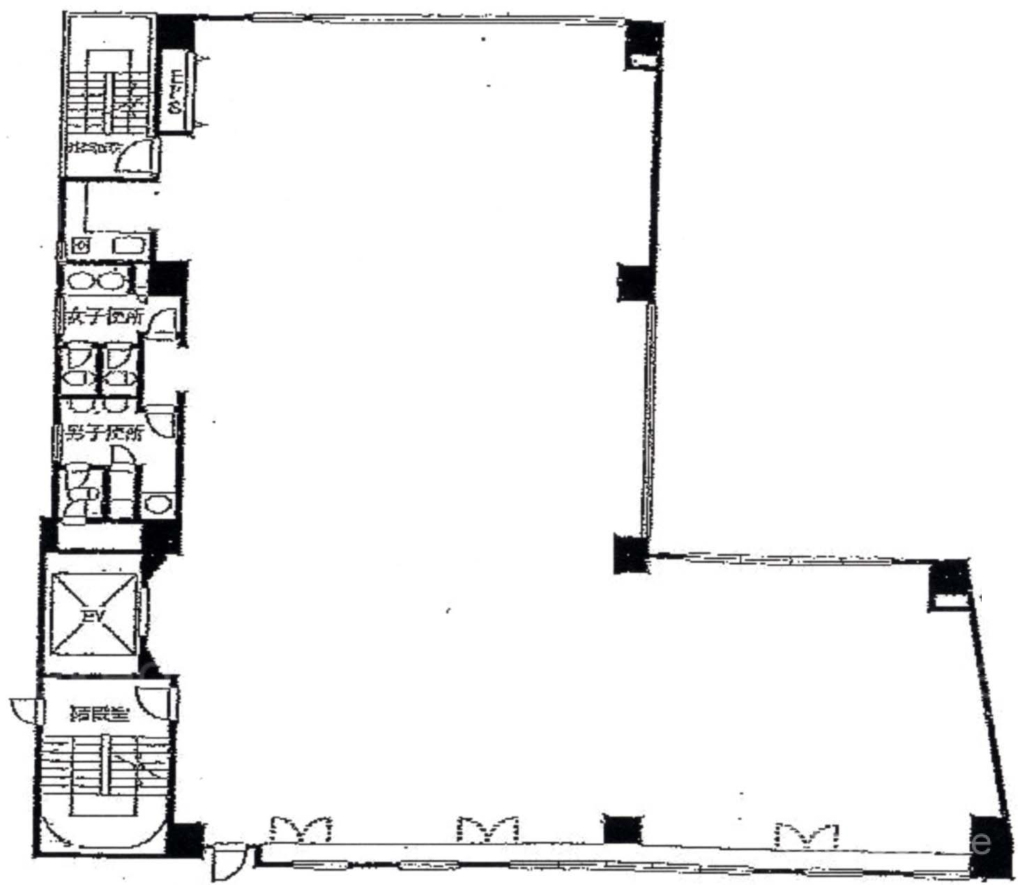
  • 基準階

    基準階

内見やお見積りなどの各種お問い合わせ

全物件
仲介手数料無料
仲介から
入居工事まで
ワンストップで対応
経験豊富なスタッフが
スピード感をもって
対応

周辺での似た条件の物件

非公開物件 多数あり!

お問い合わせフォーム